If you’re in the market for a new home and looking for something with a bit more space, 3 bedroom row house plans might be just what you need. With three bedrooms, you’ll have plenty of room for your family or guests.
These plans typically feature a master bedroom with an ensuite bathroom, as well as two additional bedrooms that can be used for kids, a home office, or whatever else you may need. The open-concept layout of row houses also provides a spacious feel.
3 Bedroom Row House Plans
3 Bedroom Row House Plans: A Perfect Blend of Space and Style
One of the benefits of 3 bedroom row house plans is the efficient use of space. You’ll have enough room for everyone in the family while still maintaining a cozy and welcoming atmosphere. Plus, the modern design elements add a touch of style to your home.
With a 3 bedroom row house, you can easily host family gatherings, game nights, or simply relax in your own personal sanctuary. The flexibility of the layout allows you to customize the space to suit your lifestyle and needs, making it a perfect choice for many homeowners.
Overall, 3 bedroom row house plans offer a winning combination of functionality and charm. Whether you’re a growing family or simply want more room to spread out, these plans provide the perfect solution. Consider exploring this option for your next home to enjoy the benefits of spacious living in a stylish setting.
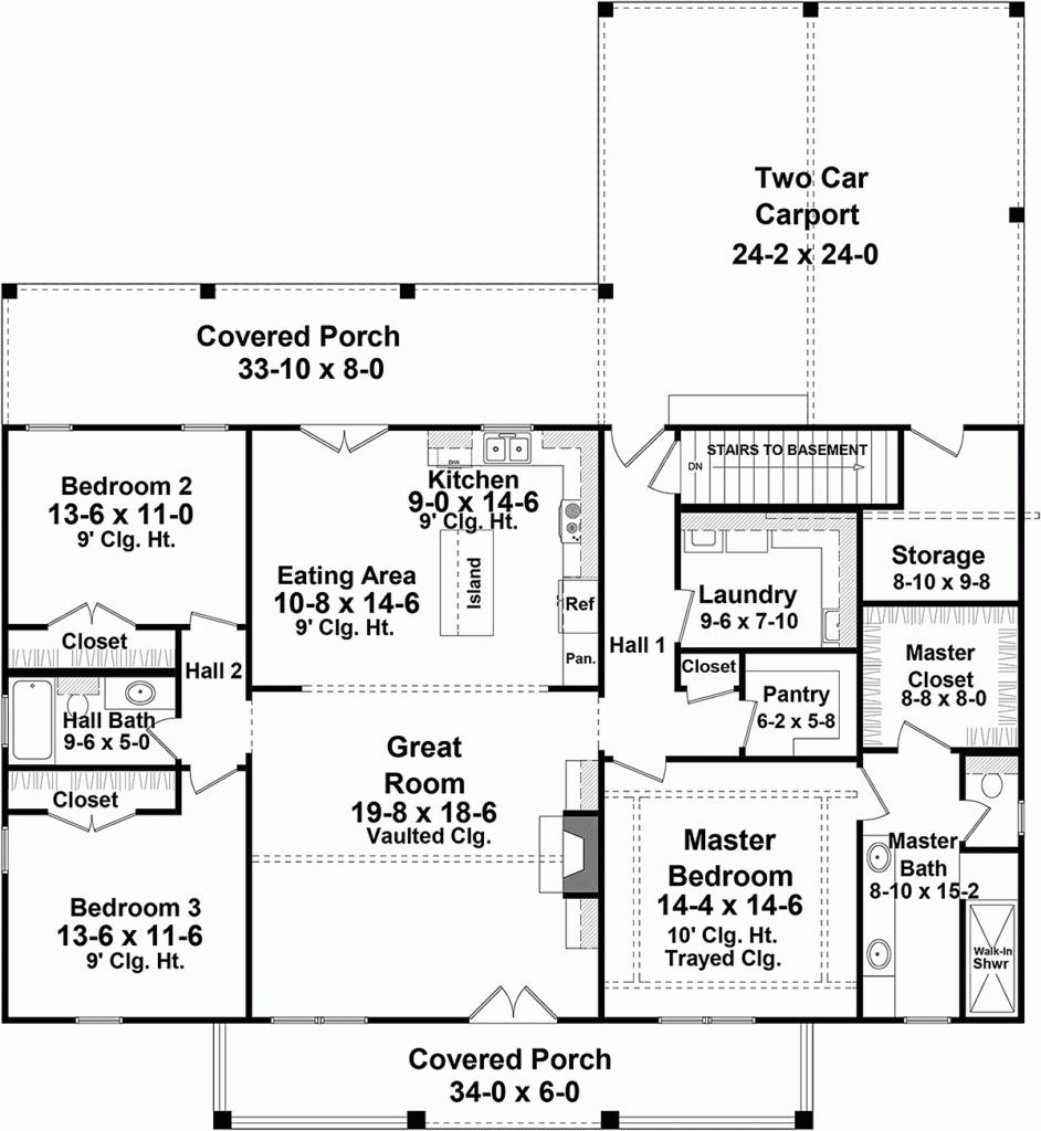
3 Bedroom Ranch Style House Plan With 1832 SQ FT And Carport
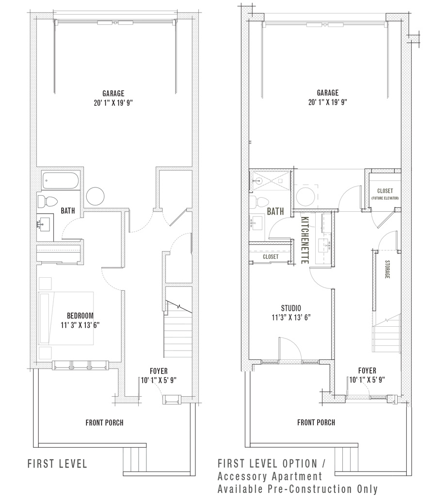
The Row House R One Studio Architecture
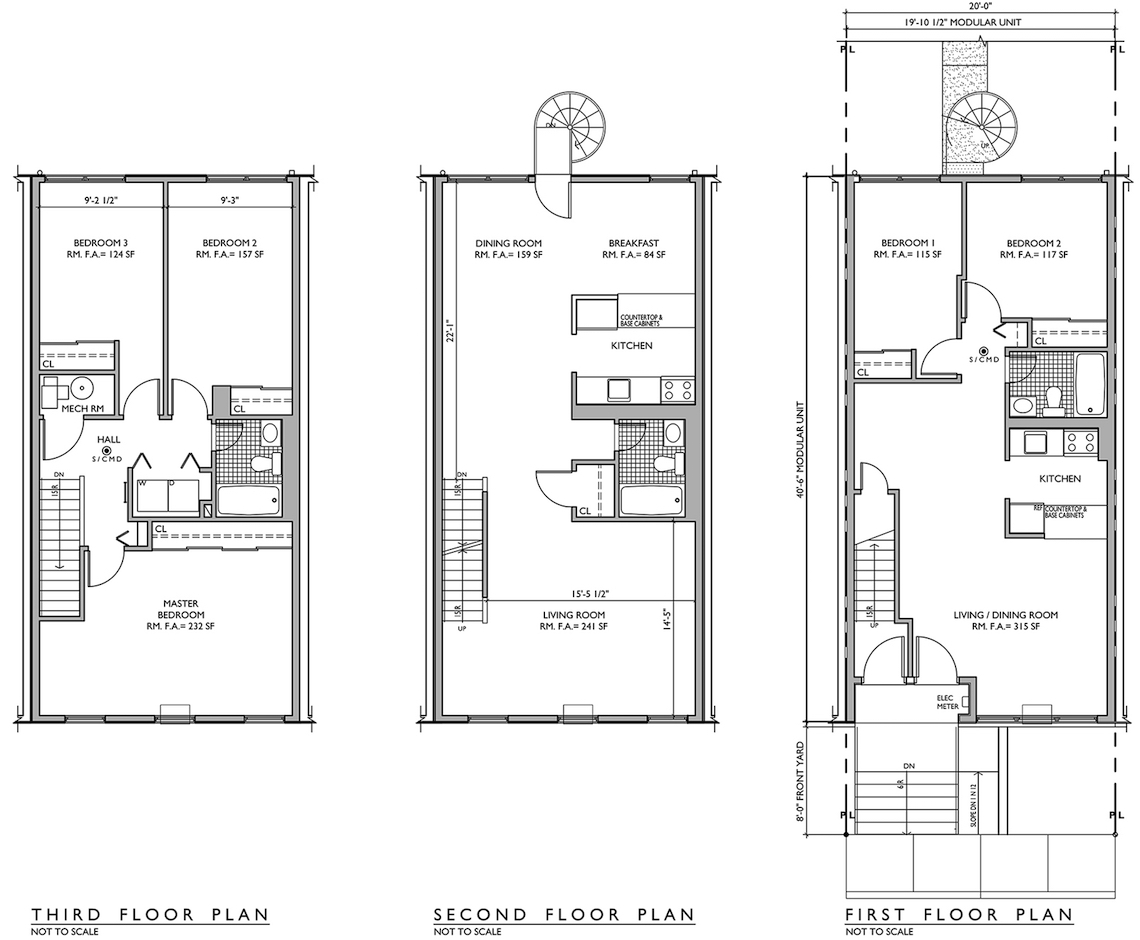
The Endlessly Adaptable Row House Urban Omnibus
52 Row And Town Homes And Plans Ideas House Design House Plans
Elliott Row Homes Three Bedroom Floor Plans Elliott Germantown





