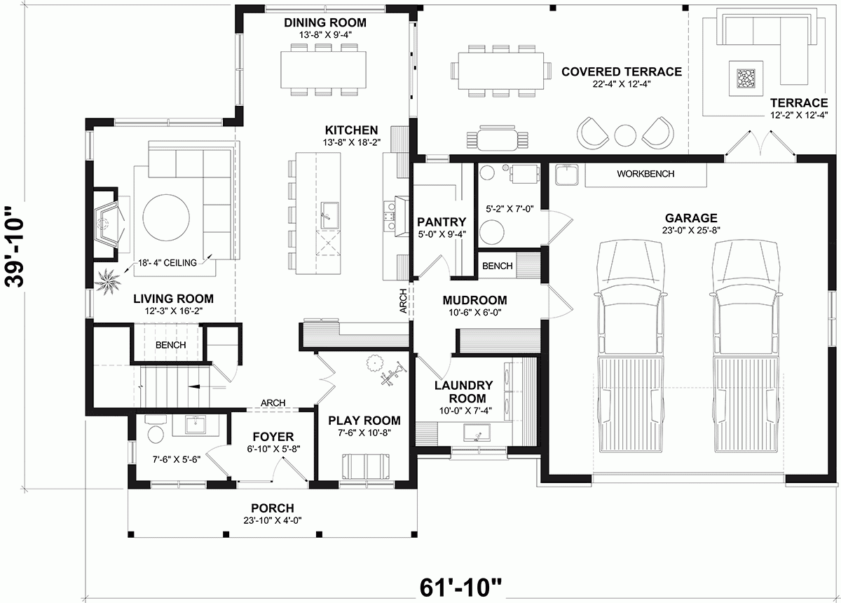
3 Bedroom One Floor House Plans