Are you in the market for a new home and looking for the perfect 3-bedroom one-floor house plan? Look no further! These types of homes are ideal for families, retirees, or anyone who prefers easy access to all living spaces on one level.
With a 3-bedroom one-floor house plan, you’ll enjoy the convenience of having all the essential rooms on the same level. No more navigating stairs or dealing with multiple levels – everything you need is right at your fingertips.
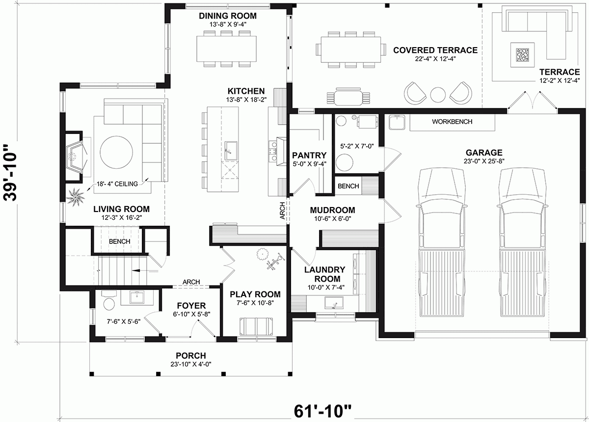
3 Bedroom One Floor House Plans
3 Bedroom One Floor House Plans: Ideal for Comfort and Accessibility
These house plans typically feature a master bedroom with an ensuite bathroom, two additional bedrooms, a spacious living room, a kitchen, and dining area – all on one level. This layout is perfect for those who value convenience and accessibility in their home design.
Many 3-bedroom one-floor house plans also include features like a covered porch, a deck, or a patio, perfect for enjoying outdoor living spaces. With open floor plans and ample natural light, these homes offer a comfortable and cozy living environment for you and your family.
Whether you’re downsizing, starting a family, or simply looking for a more manageable living space, a 3-bedroom one-floor house plan could be the perfect solution for you. Say goodbye to stairs and hello to easy living with a thoughtfully designed one-floor home.
Explore the variety of 3-bedroom one-floor house plans available and find the perfect layout that suits your lifestyle and preferences. Make your dream home a reality with a convenient and accessible one-floor living solution.
Plan 81868 Bright 3 Bedroom Home With Office And Playroom
Truoba 921 3 Bedroom Modern Farmhouse Plan
3 Bedroom One Story Ranch Style House Plan 6531 Plan 6531
Best 3 Bedroom One Floor House Plans
House Plan 77400 Ranch Style With 1311 Sq Ft 3 Bed 2 Bath





