Are you looking for affordable 3 bedroom house plans that won’t break the bank? You’re in luck! We have a variety of low-cost options that are perfect for families, first-time homebuyers, or anyone on a budget.
Our 3 bedroom low cost house plans are designed to be practical, functional, and stylish. Whether you prefer a traditional layout or a more modern design, we have something to suit your taste and needs.
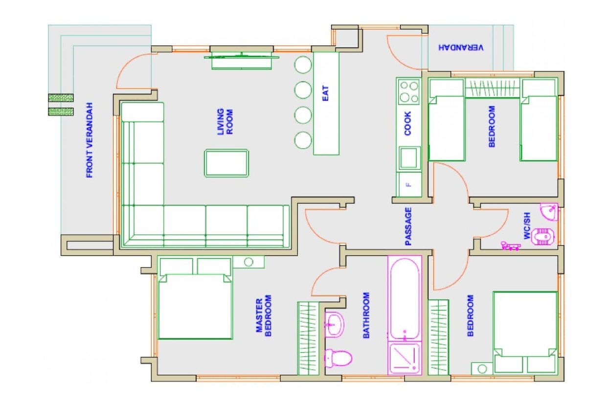
3 Bedroom Low Cost House Plans
3 Bedroom Low Cost House Plans
These budget-friendly house plans offer spacious living areas, cozy bedrooms, and efficient layouts. You’ll find features like open-concept kitchens, ample storage space, and versatile floor plans that can be customized to fit your lifestyle.
With our low-cost house plans, you don’t have to sacrifice quality for affordability. We use high-quality materials and thoughtful design elements to create homes that are both cost-effective and stylish. Plus, our team of experts is here to help you every step of the way.
Whether you’re building your first home or downsizing to a more manageable size, our 3 bedroom low cost house plans are a great option. You’ll get the space you need without breaking the bank, so you can focus on enjoying your new home.
Don’t wait any longer to find the perfect 3 bedroom low cost house plan for your needs. Browse our selection today and start planning your dream home!
3 Bedroom Low Cost House Plan Kerala Home Design And Floor Plans 10K Dream Houses
Low Budget Modern 3 Bedroom House Design 13056 AfrohousePlans
3 Bedroom House Plans PDF Download Home Designs Nethouseplans
Low Cost Simple 3 Bedroom House Plans In Kenya Aspax Construction Company
House Plans In Kenya The Budget 3 Bedroom Bungalow House Plan David Chola Architect





