Looking for the perfect 3 bedroom Indian house plans for your dream home? You’ve come to the right place! With a variety of designs and styles available, you’re sure to find one that suits your needs and preferences.
Whether you prefer a modern or traditional look, our collection of 3 bedroom Indian house plans has something for everyone. From spacious layouts to functional designs, each plan is carefully crafted to provide comfort and functionality.
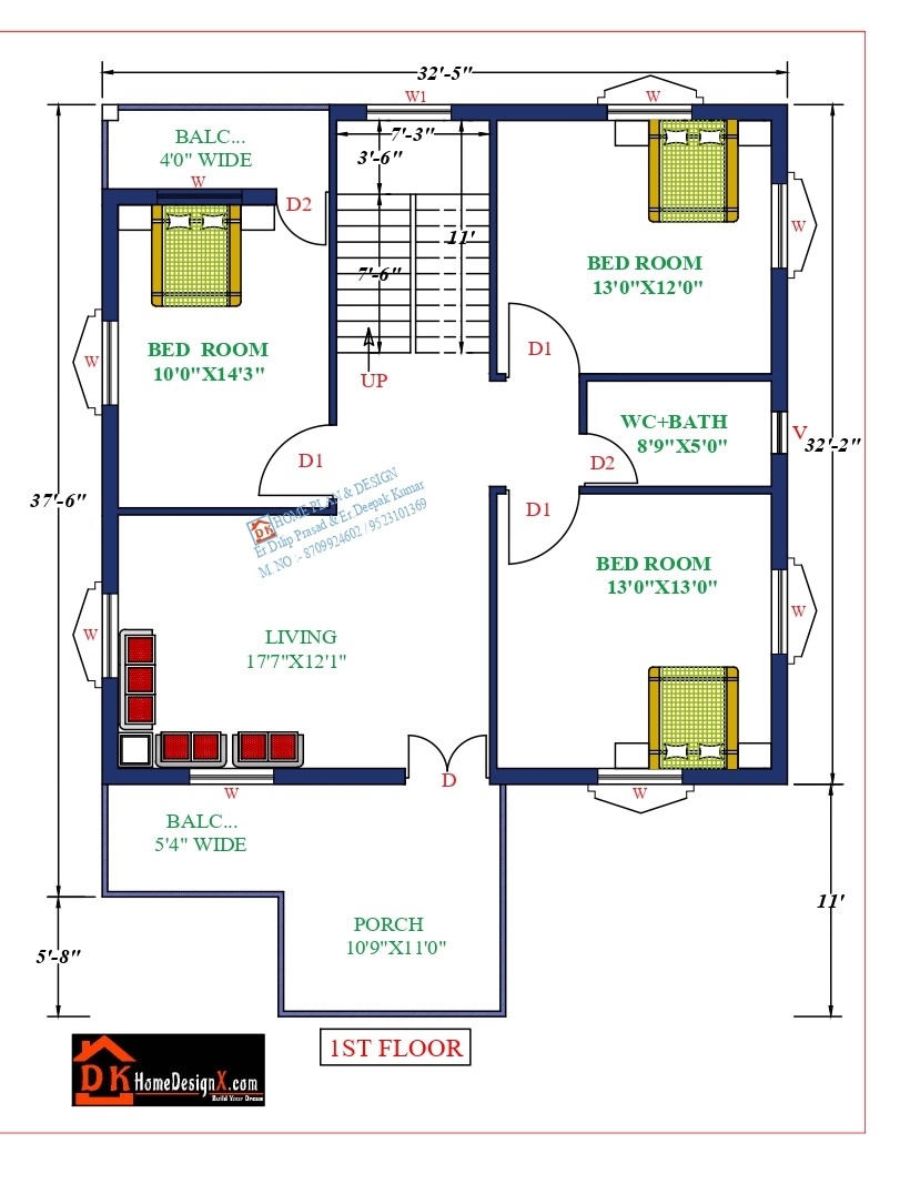
3 Bedroom Indian House Plans
3 Bedroom Indian House Plans: Finding Your Ideal Home Design
With open floor plans, large windows, and thoughtful details, our 3 bedroom Indian house plans offer the perfect blend of style and functionality. Whether you’re a growing family or a couple looking to downsize, these plans are versatile and adaptable to your needs.
From cozy bungalows to expansive two-story homes, our collection includes a wide range of options to choose from. Each plan can be customized to suit your preferences, ensuring that your dream home becomes a reality.
Don’t settle for a cookie-cutter design when you can have a unique and personalized 3 bedroom Indian house plan that reflects your style and personality. Browse through our collection today and find the perfect design for your dream home!
Ready to take the next step in building your dream home? Contact us today to learn more about our 3 bedroom Indian house plans and start the journey towards creating the home you’ve always wanted. Your dream home is just a plan away!
33X43 Affordable House Design DK Home DesignX
South Indian House Plan 2800 Sq Ft Kerala Home Design And Floor Plans 10K Dream Houses
3 Bedroom House Plan With Images How To Choose The Right Plan
3 Bedroom Full House Design Houzone
3 BHK House Plan For Perfect Home Construction JK Cement





