Finding the perfect home can be a daunting task, especially when considering the layout and space requirements. A well-designed house plan can make all the difference in creating a comfortable living environment for you and your family.
Among various options, a 3 bedroom house plan stands out for its versatility and practicality. This type of layout accommodates families of different sizes while providing ample space for relaxation and entertainment.
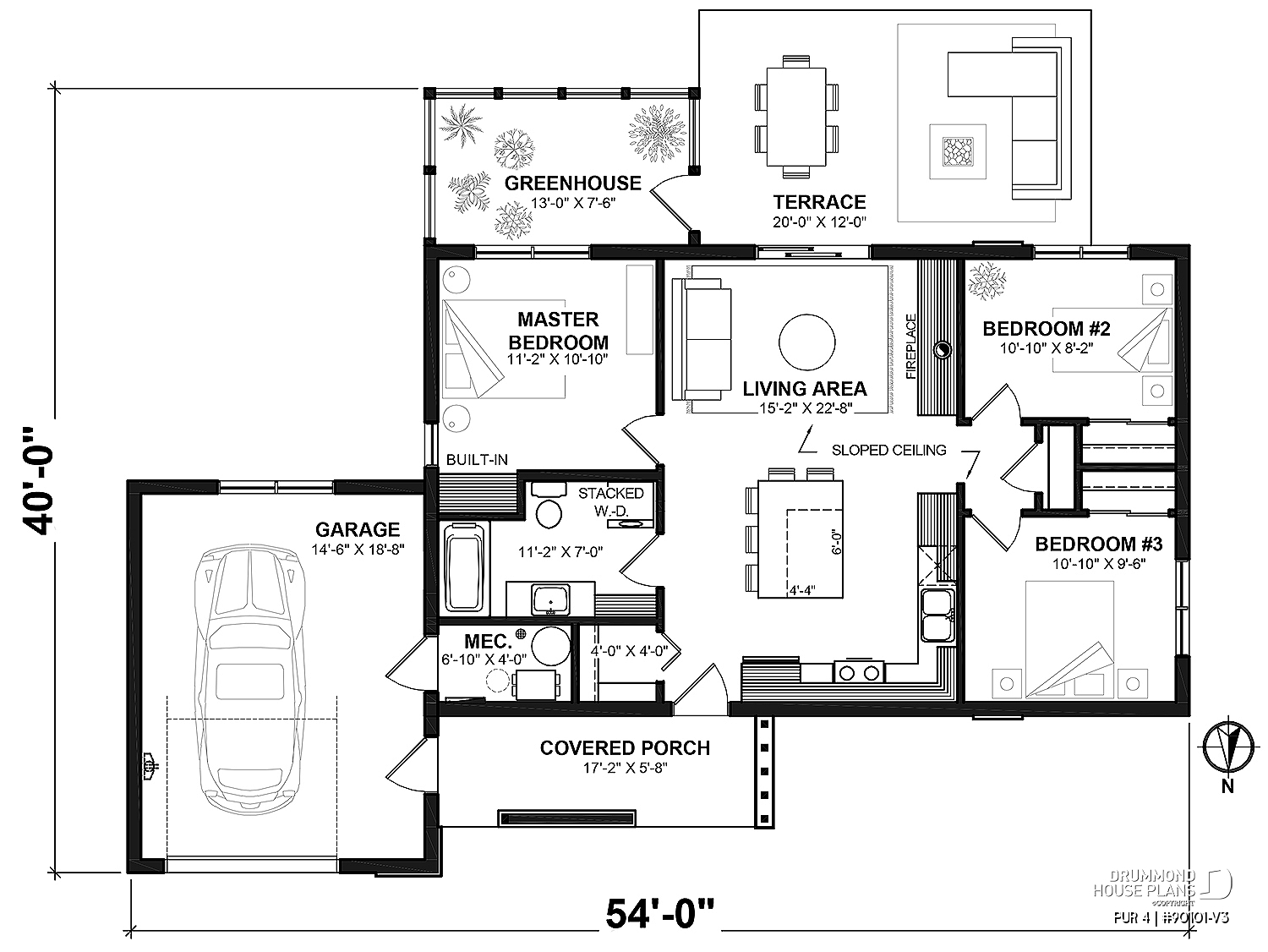
3 Bedroom House Plan
3 Bedroom House Plan
A 3 bedroom house plan typically features an open-concept living area that connects the kitchen, dining, and living spaces. This design fosters interaction among family members while keeping the home feeling spacious and inviting.
Additionally, having three bedrooms allows for flexibility. Whether you need a guest room, a home office, or space for children, this layout can easily adapt to your lifestyle needs. Each bedroom can be designed to reflect personal tastes and preferences.
Another advantage of a 3 bedroom house plan is the potential for future growth. As families evolve, having extra rooms can accommodate changing needs without requiring a major renovation or move.
Ultimately, choosing a 3 bedroom house plan means investing in a home that balances comfort and functionality. It’s an ideal choice for those looking to create lasting memories in a space that feels just right.
In conclusion, a 3 bedroom house plan offers the perfect blend of space and adaptability. It caters to various lifestyles while ensuring that every family member has their own sanctuary to enjoy.
