If you’re in the market for a new home and interested in energy efficiency, 3 bedroom energy-efficient house plans could be the perfect solution for you. These plans are designed to maximize energy savings while still providing ample space for a family.
With the increasing focus on sustainability and reducing carbon footprints, energy-efficient homes have become increasingly popular. By incorporating features such as solar panels, energy-efficient appliances, and proper insulation, these house plans can help you save money on your energy bills in the long run.
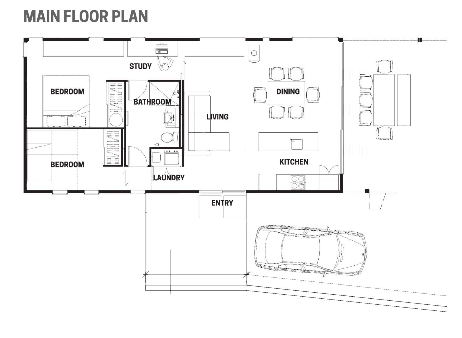
3 Bedroom Energy Efficient House Plans
3 Bedroom Energy Efficient House Plans
When looking at 3 bedroom energy-efficient house plans, you’ll find a variety of options to suit your needs. From modern designs to more traditional layouts, there are plenty of choices available to help you create the perfect home for your family.
Many of these house plans also focus on maximizing natural light and ventilation, reducing the need for artificial lighting and air conditioning. This not only helps to save energy but also creates a more comfortable living environment for you and your family.
Whether you’re building a new home or renovating an existing one, considering energy-efficient house plans is a smart choice for both your wallet and the environment. By making small changes to your home’s design, you can make a big impact on your energy usage and reduce your carbon footprint.
So, if you’re looking for a sustainable and cost-effective housing option, consider exploring 3 bedroom energy-efficient house plans. Not only will you be doing your part for the planet, but you’ll also be creating a comfortable and stylish home for you and your family to enjoy for years to come.
The Advantages Of Energy Efficient Duplex House Designs DFD
Budget Friendly House Plan With 3 Bedrooms
Energy Star House Plans Modern House Plans By Mark Stewart
Green Home Of The Year Energy Efficient Compact House
Efficient 3 Bedroom House Plans The Red Cottage





