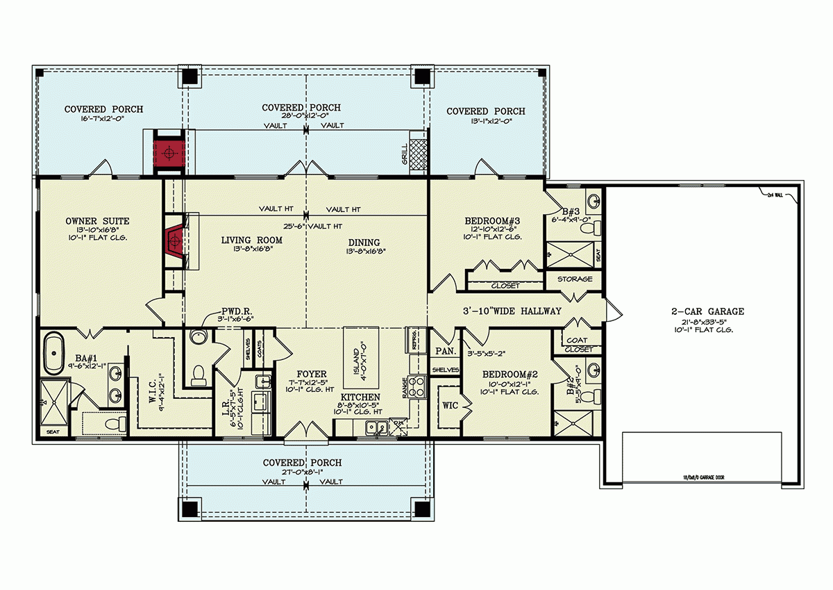
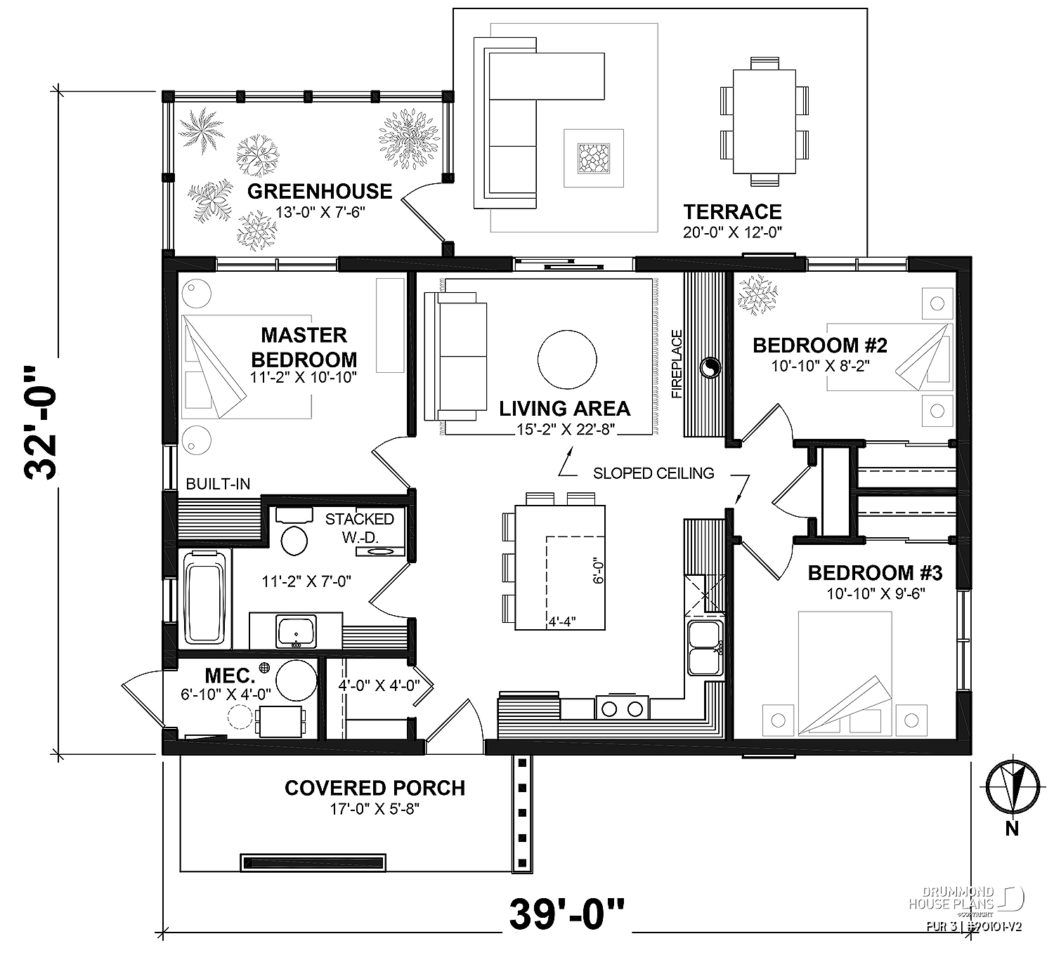
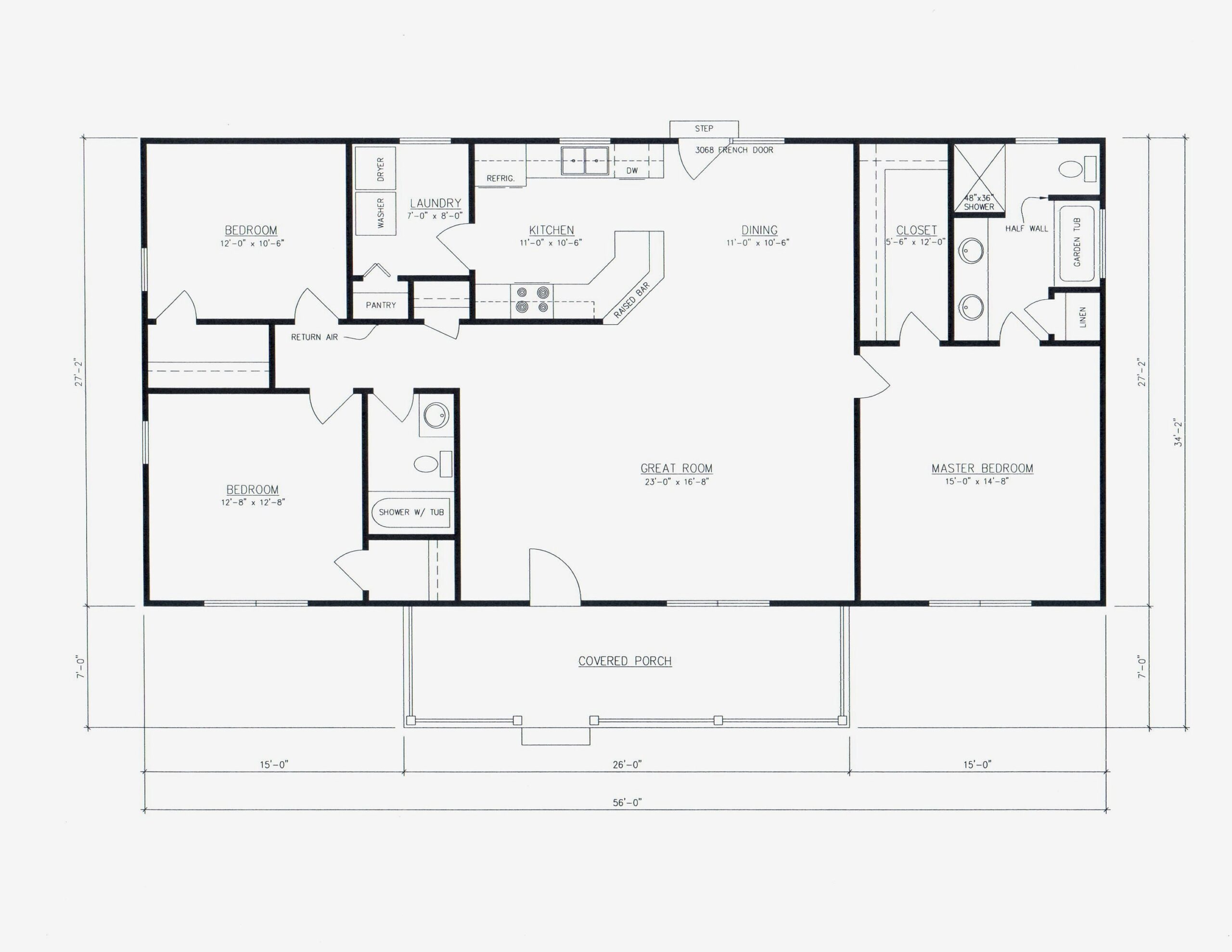
3 Bedroom 3 Bath House Plans