Are you in the market for a new house? Consider the convenience and comfort of a 24×32 3 bedroom house plan. These plans offer a perfect balance of space and functionality for families of all sizes.
With 3 bedrooms, you’ll have plenty of room for your family to live and grow. Whether you need extra space for guests, a home office, or a hobby room, a 24×32 house plan can accommodate your needs without feeling cramped.
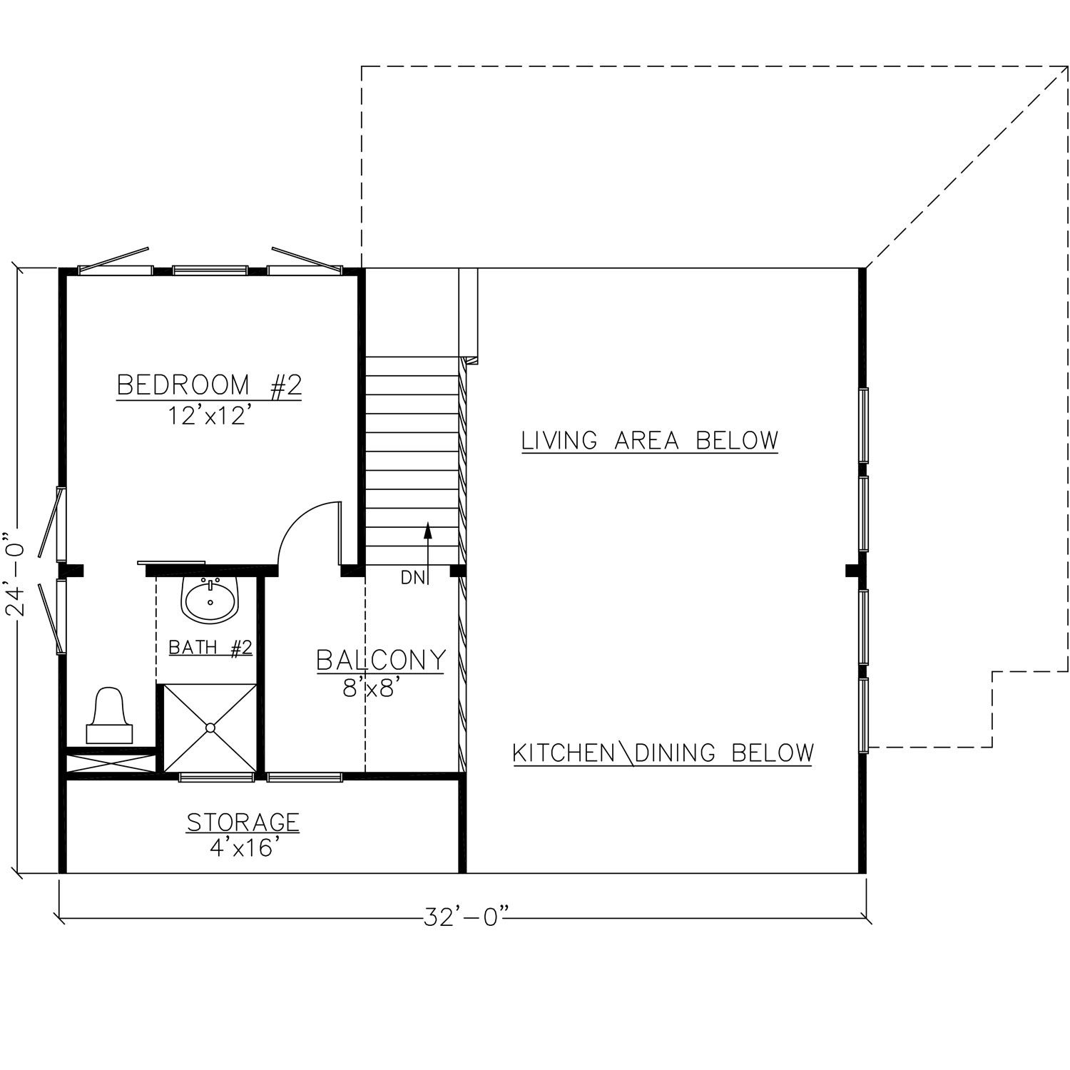
24×32 3 Bedroom House Plans
Discover the Benefits of 24×32 3 Bedroom House Plans
One of the key advantages of a 24×32 3 bedroom house plan is the flexibility it offers. You can easily customize the layout to suit your lifestyle and preferences. From open-concept living areas to spacious bedrooms, the possibilities are endless.
Additionally, these house plans are designed with efficiency in mind. With thoughtful layouts and well-designed spaces, you can maximize every square foot of your home. Whether you’re looking for a cozy retreat or a place to entertain friends and family, a 24×32 house plan has you covered.
Don’t wait any longer to find your dream home. Explore the benefits of 24×32 3 bedroom house plans and start envisioning the perfect space for you and your loved ones. With the right plan, you can create a home that meets all your needs and reflects your unique style.
Sample Floor Plans Canada Knotty Pine Cabins
Amazon Easy Cabin Designs 24×32 Garage Apartment Plans Package Blueprints U0026 Material List Kitchen Products
24×32 House 1 Bedroom 1 5 Bath 851 Sq Ft PDF Floor Plan Instant Download Mod House Construction Plan Bungalow Style House Plans Model House Plan
24×32 Modern Cabin House Plan Barndominium 3 Bedroom 1000 Sq Ft Farmhouse Floor Plans Custom Architectural Spruce Plans Cottage Etsy
24X32 Modern House Design DK Home DesignX





