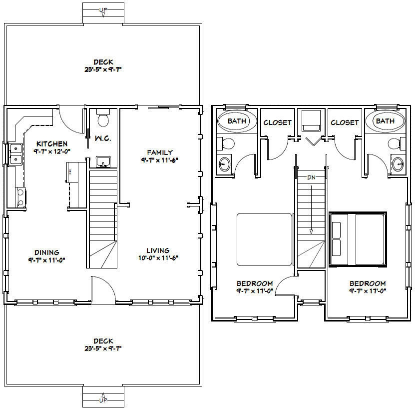
24×24 House Plans 2 Bedroom