Looking for the perfect house plan that fits your family’s needs? Consider the 20 35 House Plan 3 Bedroom! This spacious layout offers ample room for your family to grow and thrive.
With three bedrooms, you’ll have plenty of space for your kids, guests, or even a home office. The open-concept design of the 20 35 House Plan creates a warm and inviting atmosphere for all to enjoy.
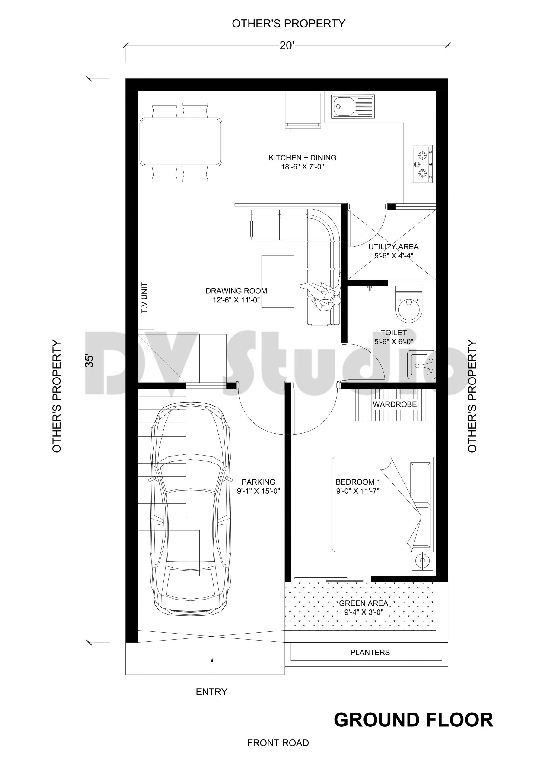
20 35 House Plan 3 Bedroom
Why Choose the 20 35 House Plan 3 Bedroom?
Not only does this layout provide plenty of living space, but it also offers flexibility for your family’s needs. Whether you need an extra bedroom, a playroom for the kids, or a cozy reading nook, this plan has you covered.
The 20 35 House Plan 3 Bedroom is designed with functionality and comfort in mind. From the spacious master suite to the well-appointed kitchen, every detail has been carefully considered to ensure your family’s happiness and well-being.
Imagine coming home to a place that truly reflects your family’s lifestyle and needs. The 20 35 House Plan 3 Bedroom offers the perfect blend of style, comfort, and functionality for you and your loved ones to enjoy for years to come.
Don’t settle for a cookie-cutter house plan that doesn’t meet your family’s needs. Choose the 20 35 House Plan 3 Bedroom for a home that is as unique and special as your family is. Make your dream home a reality today!
20 X 35 House Plan 2bhk With Car Parking
Buy 20×35 House Plan 20 By 35 Front Elevation Design 700Sqrft Home Naksha
20X35 House Design DV Studio
20 5 X 35 SIZE BUDGET HOUSE
20 35 House Plan House Plan Files





