Are you dreaming of a spacious 2 story 4 bedroom house plan that suits your family’s needs? Look no further! With ample space for everyone to enjoy, this type of home offers comfort and functionality.
Whether you have a large family or just like extra space for guests, a 2 story 4 bedroom house plan is perfect for accommodating everyone. From cozy bedrooms to spacious living areas, this layout provides the best of both worlds.
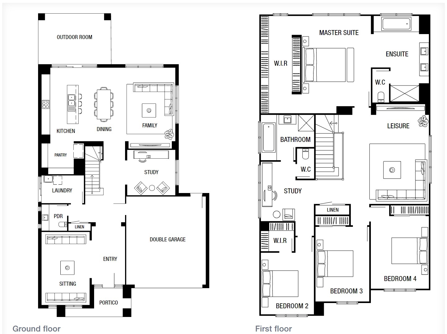
2 Story 4 Bedroom House Plan
Benefits of a 2 Story 4 Bedroom House Plan
One of the main advantages of this type of home is the separation of living spaces. With bedrooms located on the second floor, you can enjoy privacy and quiet while entertaining guests or relaxing in the living room downstairs.
Additionally, having four bedrooms allows for flexibility in room usage. Whether you need a home office, playroom, or guest room, there is plenty of space to customize each room to fit your lifestyle. The possibilities are endless!
Furthermore, a 2 story 4 bedroom house plan offers great resale value. As families grow and space becomes a premium, homes with multiple bedrooms are always in demand. Investing in this type of layout ensures that your home will be attractive to future buyers.
In conclusion, a 2 story 4 bedroom house plan provides the perfect balance of space, comfort, and functionality for any family. With separate living areas, flexible room usage, and great resale value, this type of home is a smart choice for those looking to upgrade their living space.
Stylish And Spacious Narrow Lot 4 Bedroom House Plan With Skillion Roof And Luxurious Features Etsy
4 Bedroom Floor Plans Buildi
4 Bedroom 2 Story Floor Plan House Designs Nethouseplans
South Florida Design Tropical 4 Bedroom House Plan South Florida Design
4 Bedroom 2 Storey House Plans 25 Display Homes In NSW





