Finding the perfect home design can be an exciting journey. Many people are drawn to the charm and functionality of two-storey houses, especially when they come with two bedrooms. These designs offer a great balance of space and comfort.
Two-storey homes provide ample room for families or individuals who enjoy having extra space. With a well-thought-out layout, these homes can maximize both privacy and communal areas, making them ideal for various lifestyles.
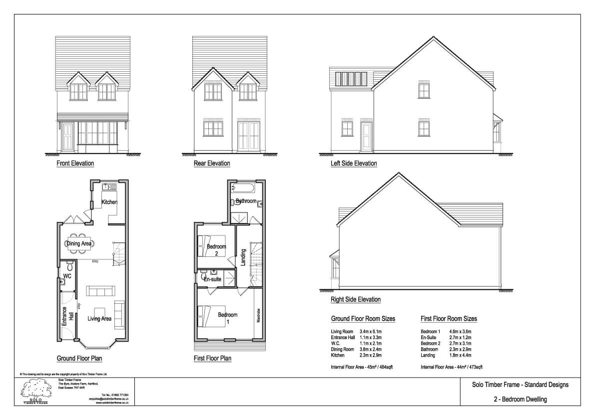
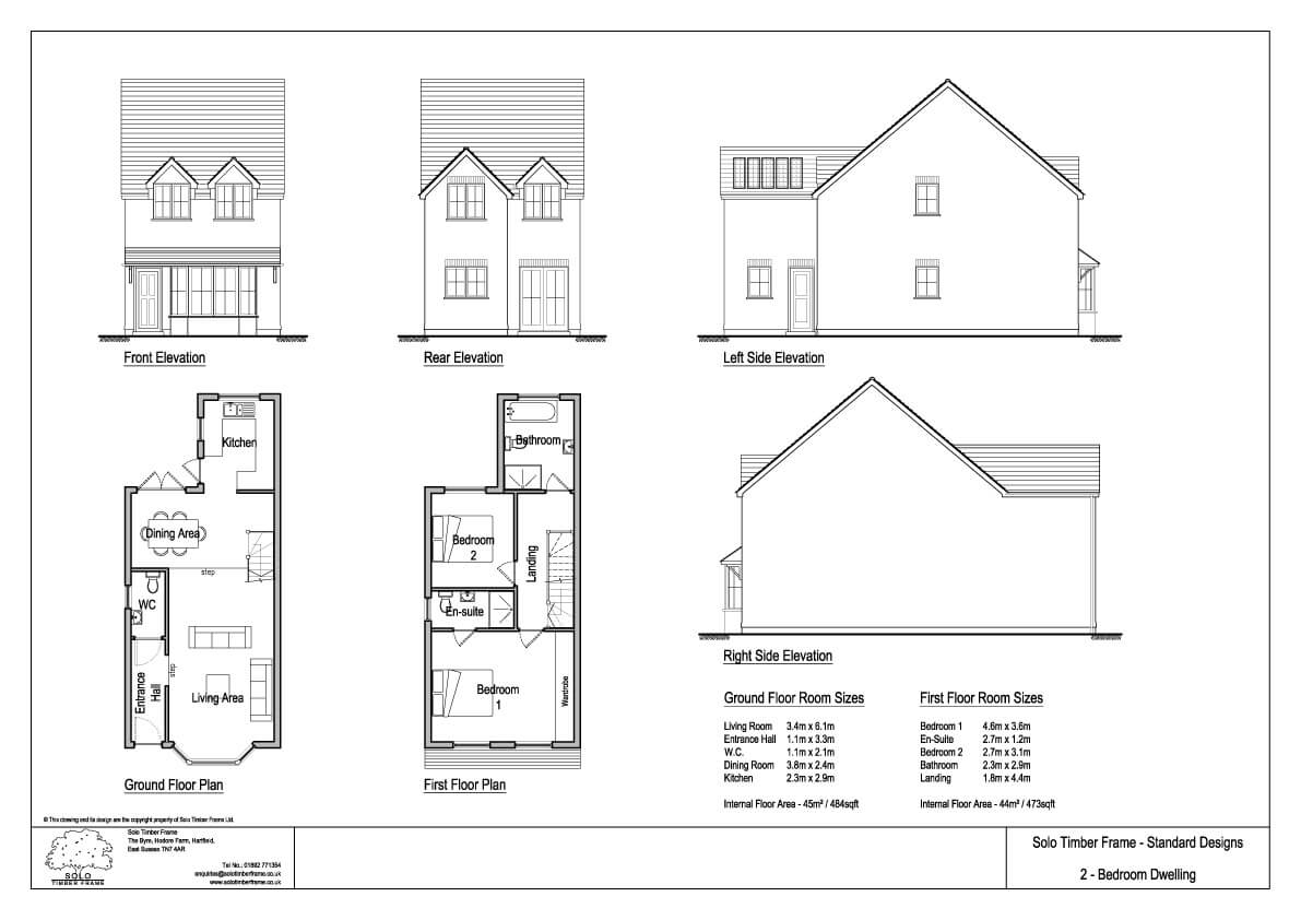
2 Storey 2 Bedroom House Plans
2 Storey 2 Bedroom House Plans
When considering 2 storey 2 bedroom house plans, think about your needs and preferences. Open floor plans are popular, allowing for seamless transitions between living spaces. This design encourages interaction while maintaining a cozy atmosphere.
Another advantage of two-storey homes is the potential for stunning views. Elevating your living space can provide beautiful perspectives of your surroundings, enhancing your overall living experience. Imagine waking up to a picturesque sunrise every morning!
Storage is often a concern in smaller homes, but two-storey designs can cleverly incorporate storage solutions. From under-stair storage to built-in cabinets, these plans can help keep your home organized and clutter-free.
Ultimately, choosing a 2 storey 2 bedroom house plan allows for flexibility and creativity. Whether you prefer a modern aesthetic or a more traditional style, there are countless options available to suit your taste.
Exploring various designs can lead you to the perfect home that meets all your needs. Embrace the journey of finding a two-storey house that feels just right for you!
