Finding the perfect home can be a challenge, especially when considering space and functionality. Many people are turning to shop house designs for their unique blend of residential and commercial spaces. These designs offer versatility and convenience.
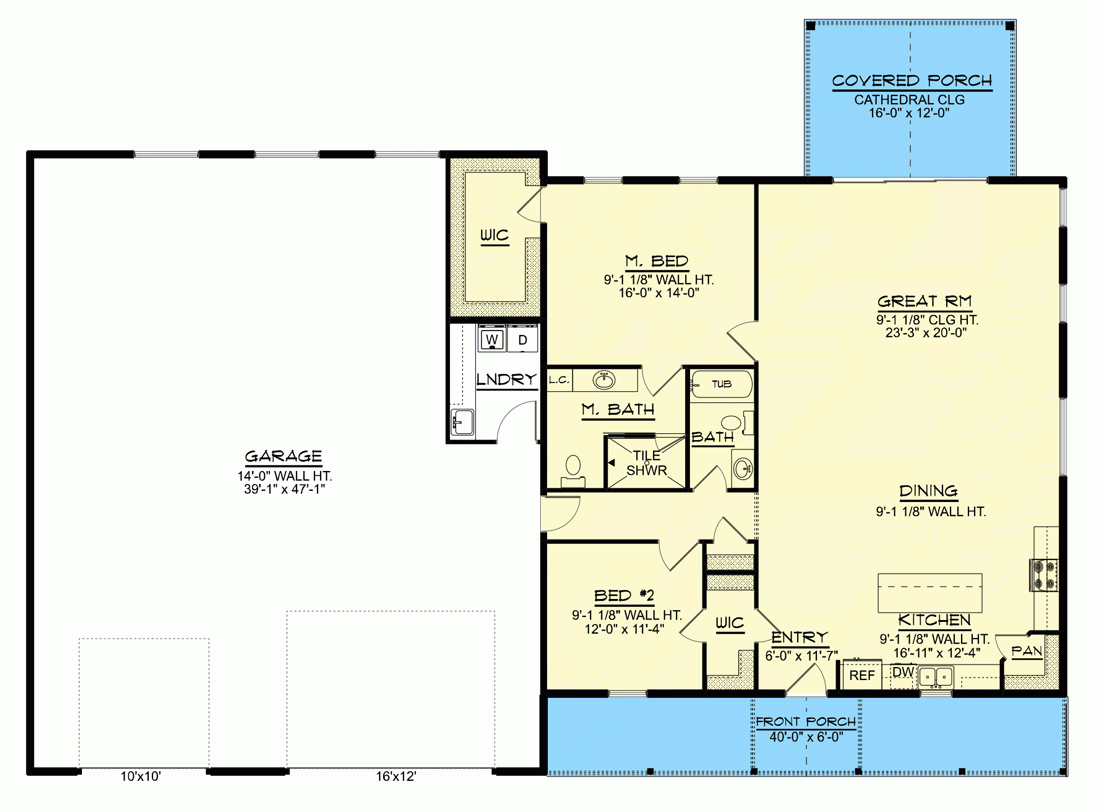
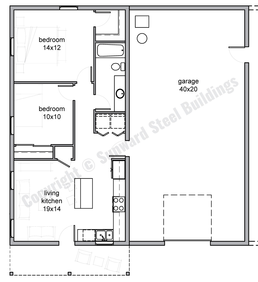
Among the various options available, 2 bedroom shop house plans stand out for their practicality. They provide ample living space while allowing for a small business setup on the ground floor. This combination is ideal for entrepreneurs.
2 Bedroom Shop House Plans
2 Bedroom Shop House Plans
2 bedroom shop house plans typically feature a compact layout that maximizes both living and working areas. The ground floor often includes a shop or office space, while the upper floor is designed for comfortable living. This setup is perfect for those who want to work from home.
These plans can be customized to fit individual needs, whether you prefer an open-concept design or separate rooms. Many designs also incorporate outdoor spaces, such as balconies or small gardens, enhancing the overall appeal of the property.
Additionally, 2 bedroom shop house plans are often more affordable than traditional homes. They allow owners to save on rent or mortgage payments while generating income from their business. This financial flexibility is a significant advantage for many families.
In conclusion, 2 bedroom shop house plans offer a fantastic solution for those seeking a balance between work and home life. With their practical designs and cost-saving benefits, they are becoming increasingly popular among modern homeowners.
