Thinking about building your dream 2 bedroom semi-detached house? Look no further! With the right plans, you can make your dream home a reality. Whether you’re a first-time homeowner or looking to downsize, a semi-detached house can be the perfect fit.
Choosing the right floor plan is crucial when designing your 2 bedroom semi-detached house. You want to maximize space while maintaining functionality and style. From open-concept layouts to traditional designs, there are endless possibilities to customize your home to suit your needs.
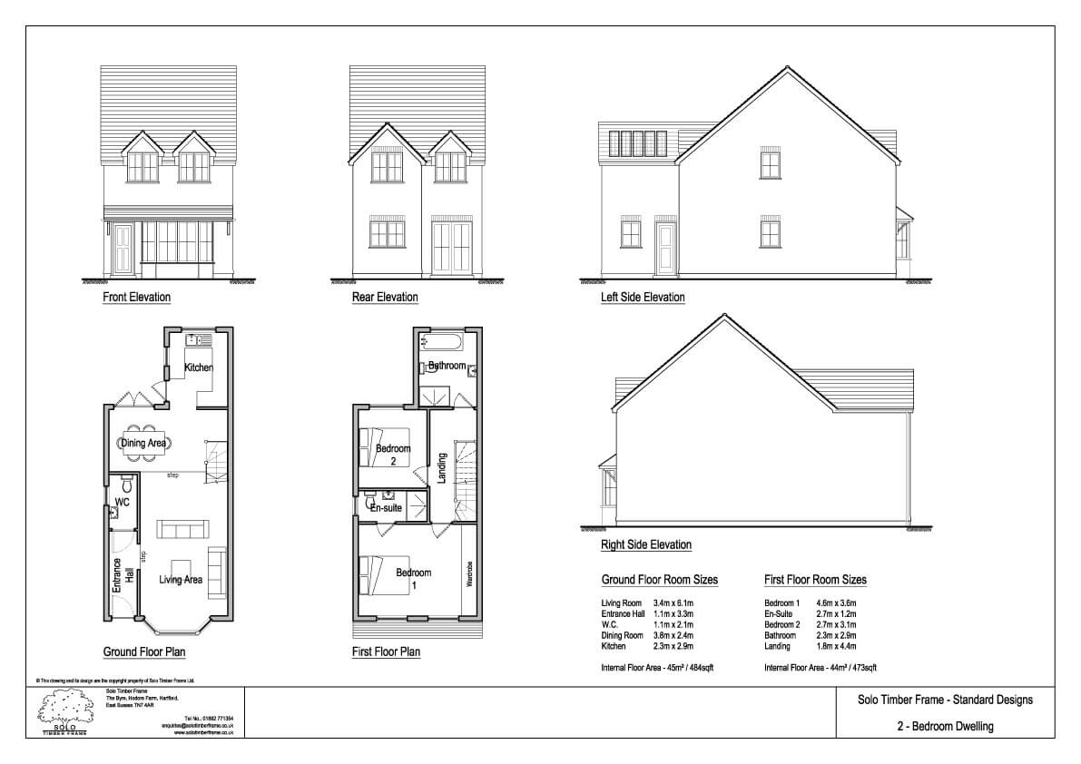
2 Bedroom Semi Detached House Plans
2 Bedroom Semi Detached House Plans
When selecting a floor plan, consider factors such as the size of the bedrooms, the placement of the kitchen and living areas, and the overall flow of the house. A well-designed layout can make a small space feel spacious and inviting, while also providing privacy and comfort.
Don’t forget to think about outdoor space when designing your semi-detached house. Whether you want a cozy backyard or a spacious deck, incorporating outdoor living areas can enhance your overall living experience. You can even add a garage or carport for added convenience and storage.
With the right 2 bedroom semi-detached house plans, you can create a home that suits your lifestyle and budget. From modern designs to classic layouts, there are options to fit every taste. Start planning your dream home today and make your vision a reality!
2 Bedroom Semi detached House For Sale In 27 Oak Hill Wolverhampton WV3
Rose Lane Floor Plans Rogate
Two Bedroom Semi Detached House Model Construction Files
Semi Detached House Plans The Caple Houseplansdirect
Townsend 2 2 Bedroom House Design Designs Solo Timber Frame Homes





