Have you ever dreamt of living in a cozy 2 bedroom passive solar house? Imagine waking up to the warm sun streaming through your windows, cutting down on energy costs while helping the environment. It’s a win-win situation!
Passive solar design utilizes the sun’s energy to naturally heat and cool your home, reducing the need for artificial heating and cooling systems. By incorporating this eco-friendly approach into your house plans, you can create a comfortable and sustainable living space.
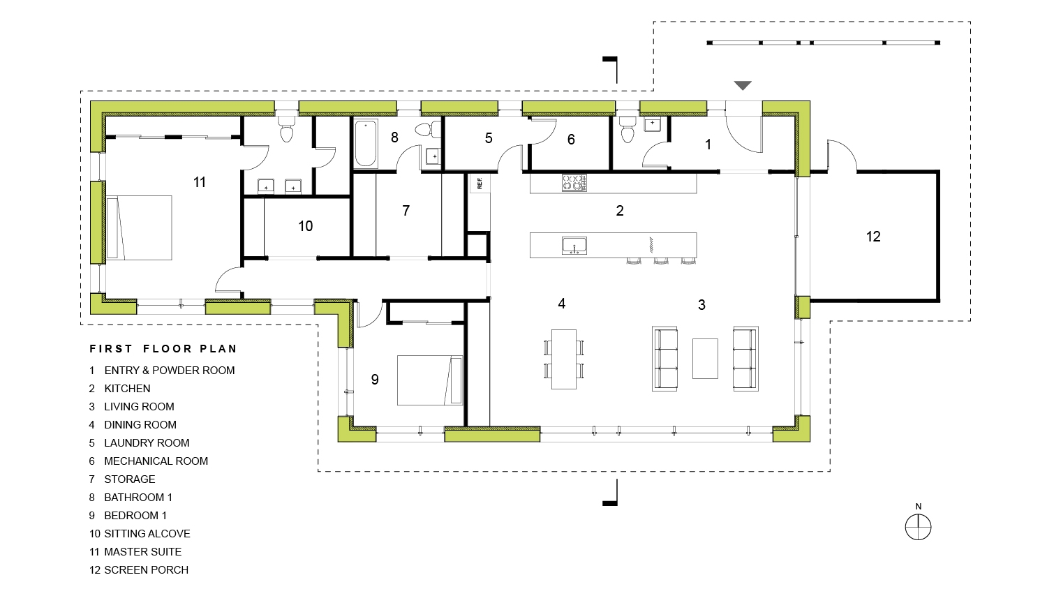
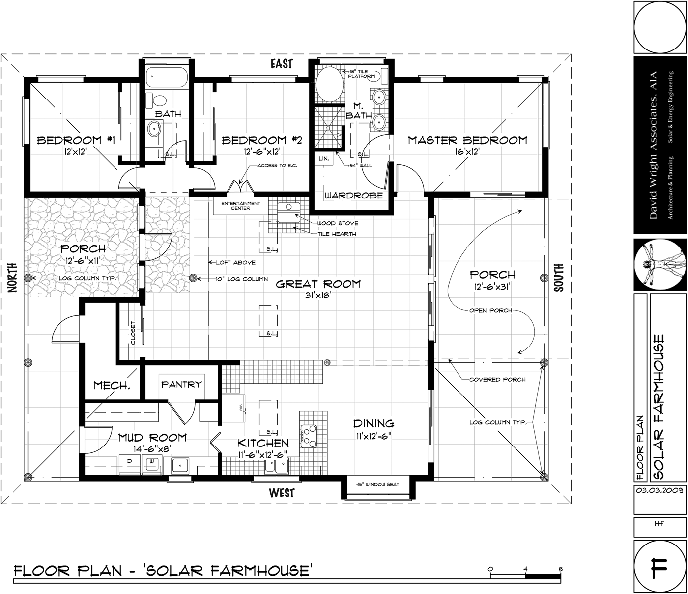
2 Bedroom Passive Solar House Plans
2 Bedroom Passive Solar House Plans
When designing your 2 bedroom passive solar house, consider factors such as the orientation of your home, the placement of windows, and the use of thermal mass materials to store heat. These elements work together to maximize the sun’s energy and minimize your carbon footprint.
By choosing the right floor plan and incorporating passive solar principles, you can enjoy a more energy-efficient home that is comfortable year-round. From reducing your utility bills to creating a healthier living environment, passive solar design offers numerous benefits for homeowners.
Whether you’re building a new home or renovating an existing one, 2 bedroom passive solar house plans can help you achieve your sustainability goals. Embrace the power of the sun and design a home that not only meets your needs but also cares for the planet.
Take the first step towards a greener lifestyle by exploring 2 bedroom passive solar house plans today. With the right design choices, you can create a home that is both beautiful and environmentally conscious. Start your journey towards sustainable living and enjoy the benefits of passive solar design!
Passive Solar House Plans Etsy
Plan 43310 Modern Courtyard Home Plans With Passive Solar Desig
RPA Passive House Plan 500 RPA Richard Pedranti Architect
17 Passive Solar House Plans Ideas House Plans Solar House Passive Solar
Passive Solar House Plans Mother Earth News





