Thinking about upgrading your living space? 2 bedroom house plans with sunroom might be just what you need to create a cozy and inviting home. With a sunroom, you can enjoy the outdoors all year round without leaving the comfort of your home.
These house plans typically feature two bedrooms, a spacious living area, a kitchen, and a sunroom that can be used as a dining room, home office, or simply a relaxing spot to unwind. The sunroom allows natural light to flood into your home, creating a bright and airy atmosphere.
2 Bedroom House Plans With Sunroom
2 Bedroom House Plans With Sunroom
Adding a sunroom to your home not only increases your living space but also adds value to your property. Imagine sipping your morning coffee in the sun-soaked room or curling up with a good book on a lazy afternoon. With 2 bedroom house plans with sunroom, you can bring the outdoors in and enjoy the beauty of nature from the comfort of your home.
Whether you prefer a modern design or a more traditional style, there are plenty of 2 bedroom house plans with sunroom to choose from. You can customize the layout to suit your lifestyle and personal taste, creating a space that reflects your unique personality.
So if you’re looking to enhance your living space and create a warm and inviting home, consider 2 bedroom house plans with sunroom. With plenty of natural light, versatile living spaces, and a seamless connection to the outdoors, these house plans are sure to make your home a cozy retreat.
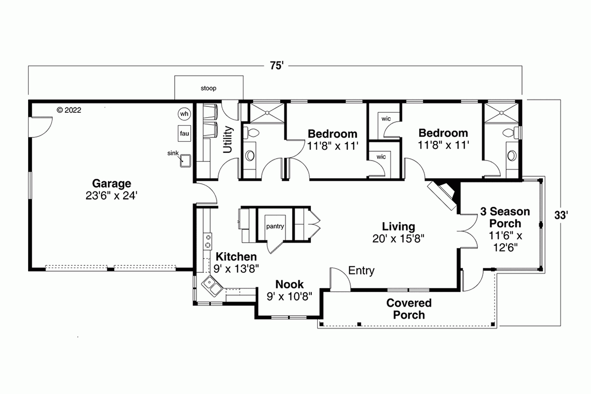
House Plan 85205 Southern Style With 2283 Sq Ft 2 Bed 2 Bath
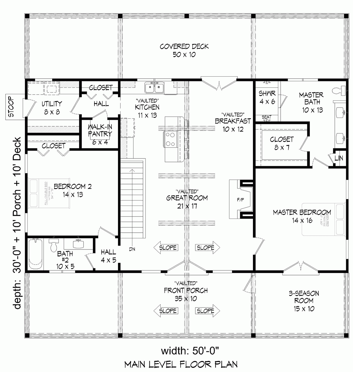
House Plans With Sunrooms Or 4 Season Rooms
House Plans With Sunrooms Or 4 Season Rooms
House Plan 78495 Traditional Style With 1258 Sq Ft 2 Bed 2 Ba
2 Bedroom Sunroom Apartments





