Looking for a cozy yet spacious home design? A 2 bedroom house plan with a loft might just be what you need. This versatile layout offers the perfect balance between functionality and style.
With a loft, you can maximize the use of vertical space, creating an additional living area or workspace. This bonus room is perfect for a home office, guest room, or even a cozy reading nook.
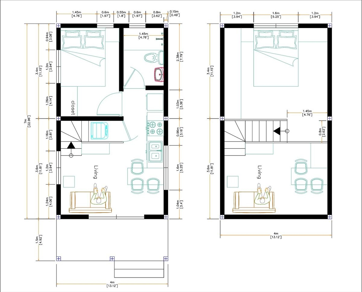
2 Bedroom House Plan With Loft
2 Bedroom House Plan With Loft
Imagine waking up in your master bedroom, enjoying a cup of coffee on the balcony, then heading upstairs to your loft to start the day. The open layout of a 2 bedroom house with a loft provides endless possibilities for customization.
Whether you prefer a modern, minimalist design or a more traditional style, a 2 bedroom house plan with a loft can be tailored to suit your preferences. Add your personal touch with unique decor and furniture to make it truly your own.
Not only does a loft add extra living space, but it also increases the overall value of your home. This versatile feature appeals to potential buyers and can make your property stand out in a competitive real estate market.
In conclusion, a 2 bedroom house plan with a loft offers the best of both worlds – a comfortable living space with the added benefit of a multi-purpose loft area. Consider this layout for your next home project and enjoy the flexibility it provides for your lifestyle.
Plan 42929 1200 Square Foot Two Story Black Scandinavian Hous
Two Bedroom Cabin Plans Genesis
13×23 Loft House Plan 4×7 Meter 2 Beds 1 Bath Gable Roof PDF Plan A4 Hard Copy
Plan 80523 2 Bedroom Small House Plan With 988 Square Feet
2 Bedroom Small House Plans Magdalene





