Finding the perfect home layout can be a challenge, especially when considering space and functionality. A well-designed 2 bedroom house can provide comfort and style for families or individuals alike.
Choosing the right layout is essential for maximizing space and ensuring a cozy atmosphere. With various designs available, it’s important to explore options that suit your lifestyle and preferences.
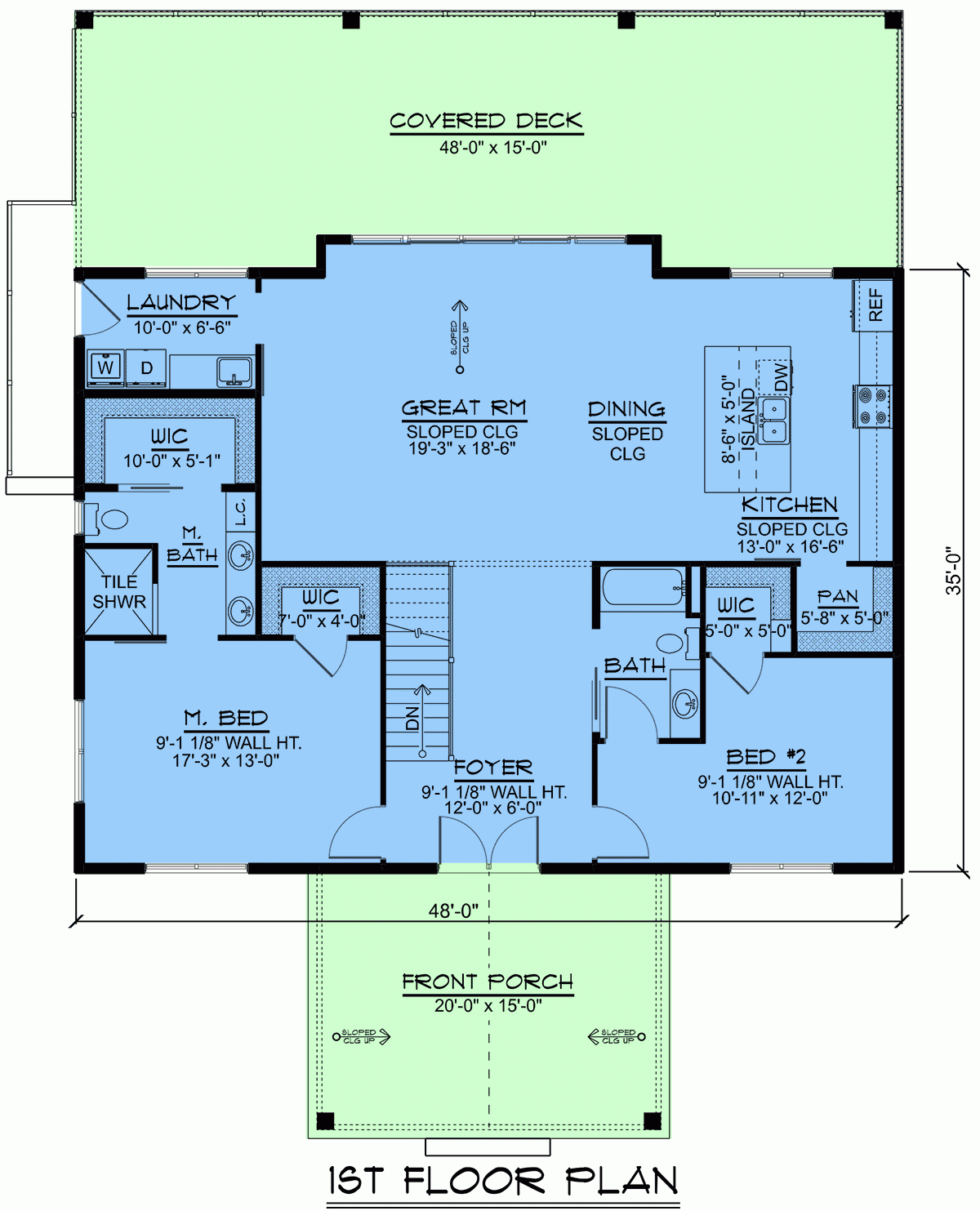
2 Bedroom House Layout Plans
2 Bedroom House Layout Plans
When looking at 2 bedroom house layout plans, consider open floor designs that create a spacious feel. These layouts often combine the living room, dining area, and kitchen, promoting interaction and making entertaining guests easier.
Another popular option is the split-bedroom layout, which offers privacy by separating the bedrooms. This design is ideal for roommates or families with older children, providing personal space while still being close to common areas.
Incorporating multifunctional spaces can enhance your 2 bedroom house layout. For example, a guest room can double as a home office, making the most of limited square footage without sacrificing comfort.
Lastly, pay attention to outdoor spaces. A small patio or garden can extend your living area and provide a relaxing retreat. Thoughtful landscaping can also improve curb appeal and create a welcoming atmosphere.
Ultimately, selecting the right 2 bedroom house layout plans involves balancing style with practicality. Take your time to explore different designs that fit your needs and create a home you’ll love for years to come.
