If you’re looking for a cozy and practical living space, a 2-bedroom flat house plan might be the perfect solution for you. These types of homes are ideal for individuals, couples, or small families who want a comfortable and functional place to call home.
With 2 bedrooms, you have the flexibility to use one as a dedicated sleeping space and the other as a home office, guest room, or whatever else suits your lifestyle. This layout allows for versatility and can accommodate various needs and preferences.
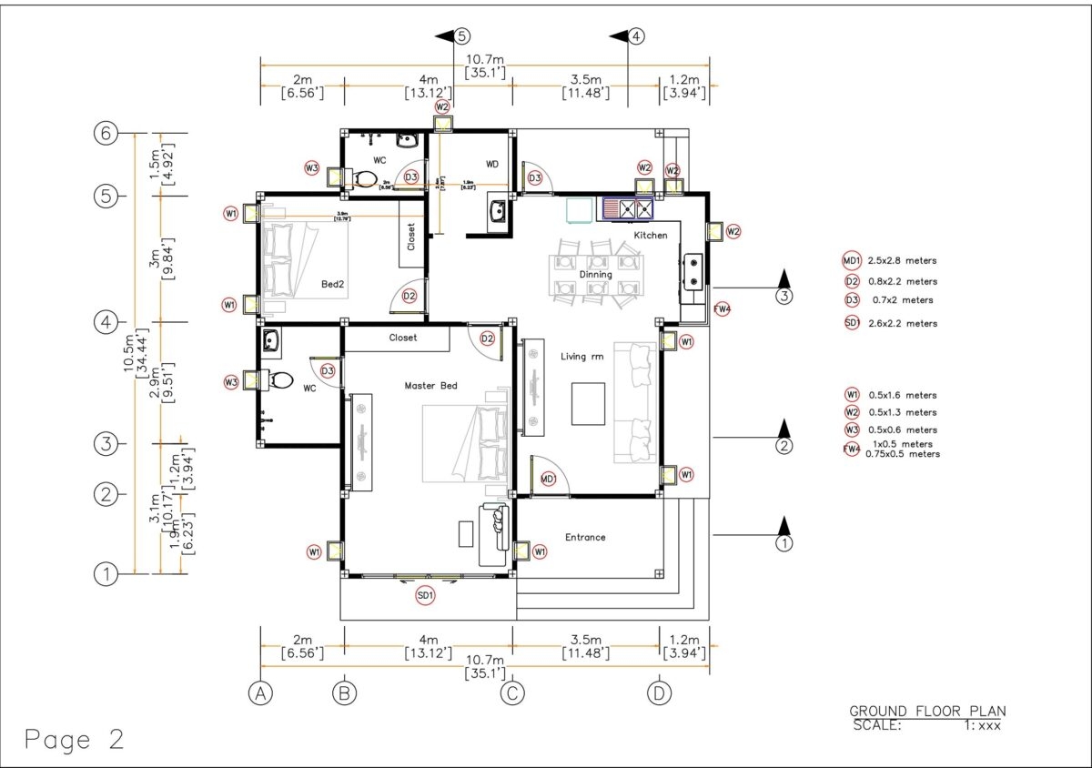
2 Bedroom Flat House Plan
2 Bedroom Flat House Plan: Features and Benefits
One of the key advantages of a 2-bedroom flat house plan is its compact size, making it easy to maintain and clean. You won’t have to worry about excessive space or clutter, as these homes are designed for efficiency and practicality.
In addition, 2-bedroom flat house plans often feature open-concept layouts, maximizing natural light and airflow throughout the space. This creates a bright and airy atmosphere that enhances the overall ambiance of the home.
Furthermore, these types of homes are typically more affordable than larger houses, making them an attractive option for budget-conscious individuals or first-time homebuyers. You can enjoy the benefits of homeownership without breaking the bank, allowing you to invest in other aspects of your life.
Overall, a 2-bedroom flat house plan offers a balance of comfort, functionality, and affordability. Whether you’re downsizing, starting a new chapter, or simply looking for a cozy space to call your own, this type of home can provide you with the lifestyle you desire.
House Plans 10 7×10 5 With 2 Bedrooms Flat Roof House Plans 3D
Style EF 2 Bedroom Village At Fox River
2 Bedroom Corridor Floor Plan Rentals In Balch Springs Forestwood
2 Bedroom Granny Flats Floor Plans Designs U0026 Builds
2 Bedroom Apartment House Plans





