Exploring unique living spaces can lead to exciting discoveries. One such option is the barndominium, a blend of barn and condominium that offers charm and functionality. These homes are gaining popularity for their versatility and aesthetic appeal.
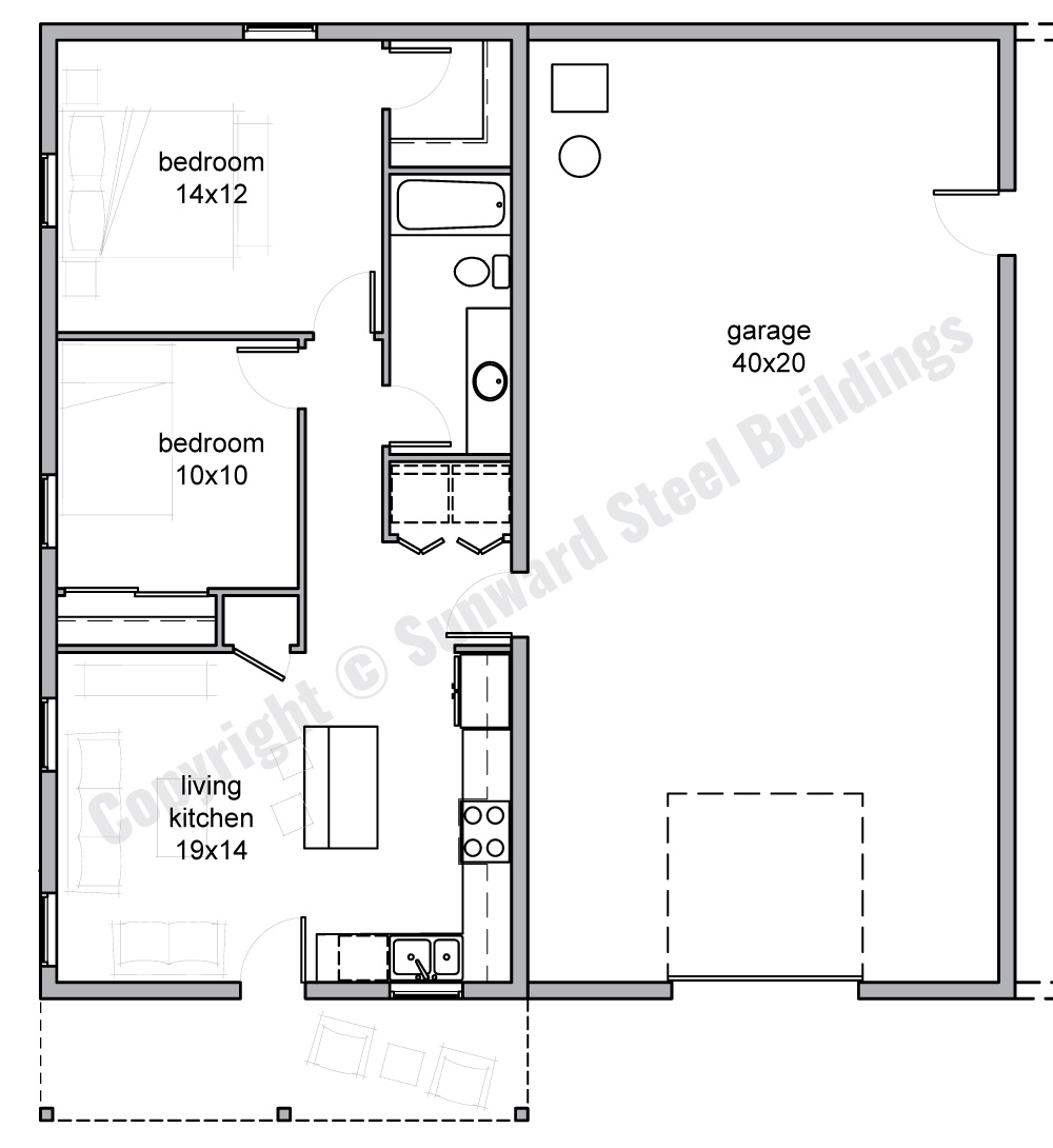
Among the various designs, 2 bedroom barndominium house plans stand out for small families or couples. They provide ample space while maintaining a cozy atmosphere, making them perfect for modern living.
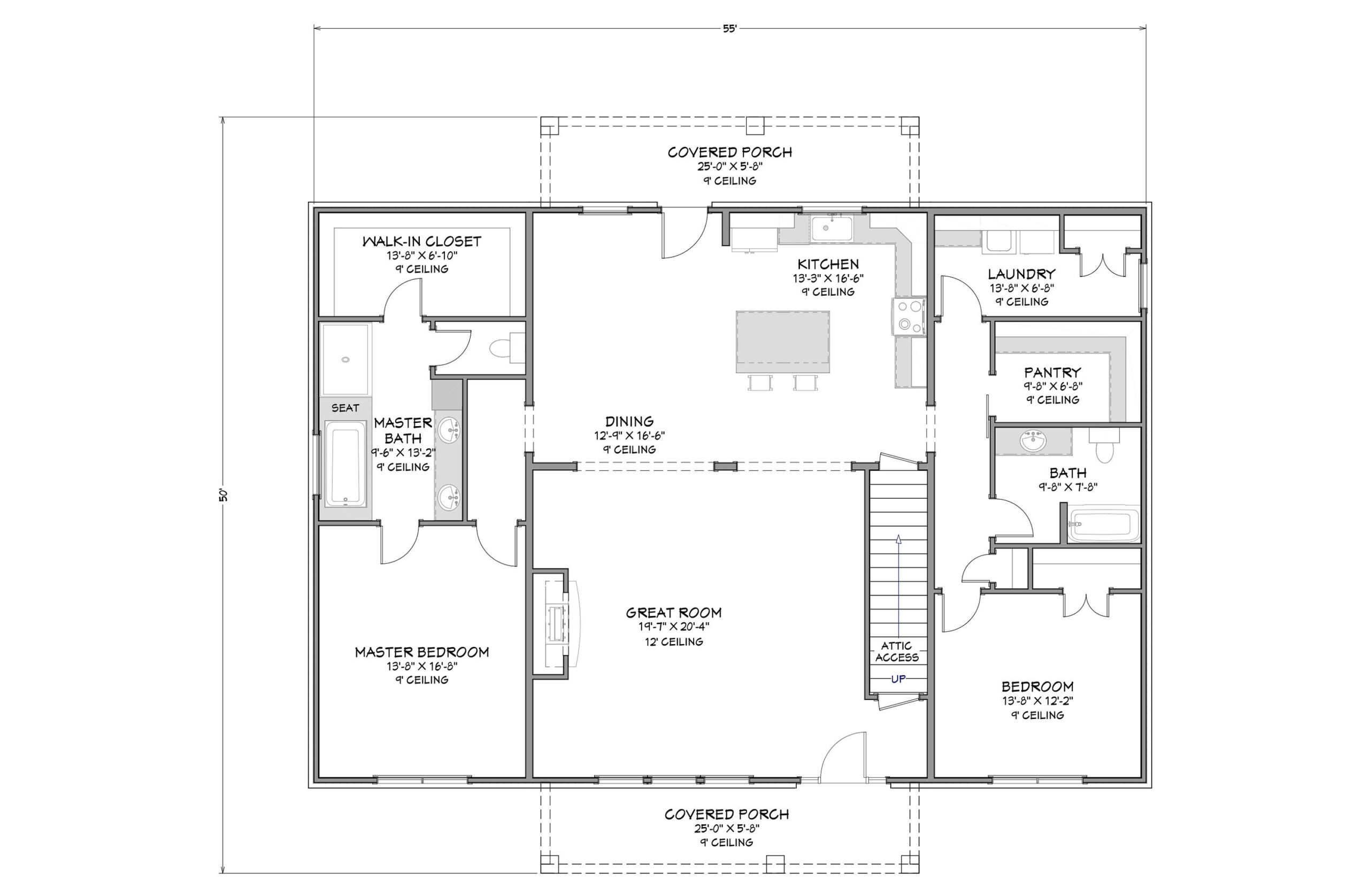
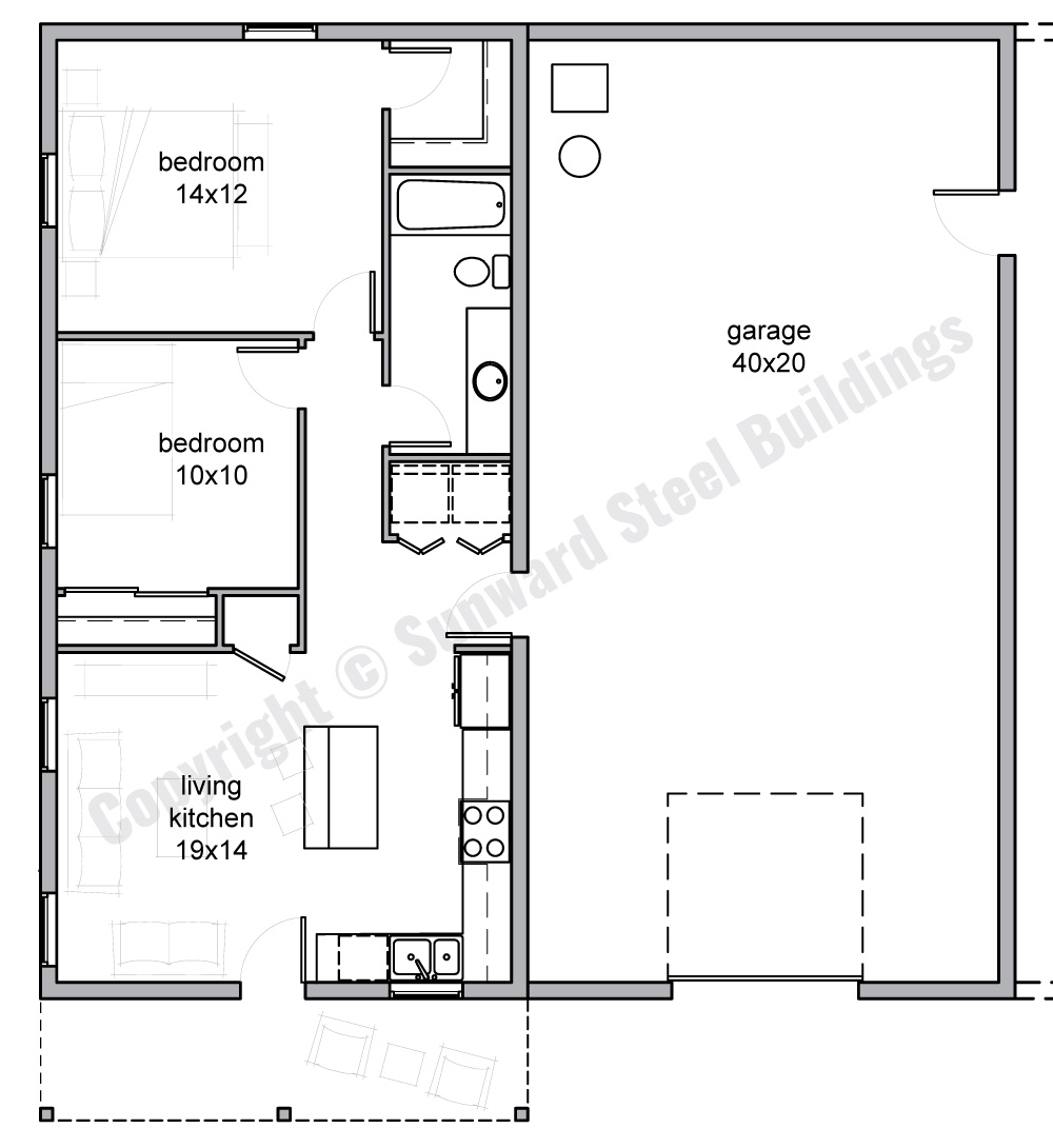
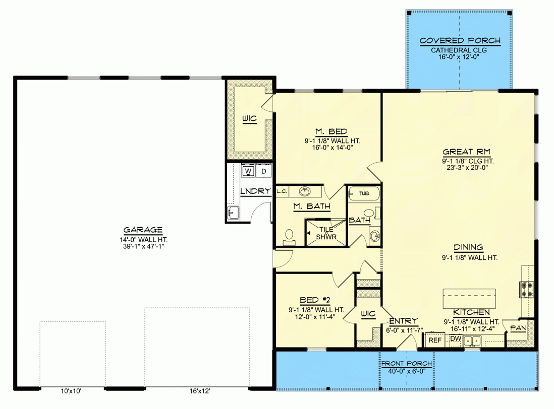
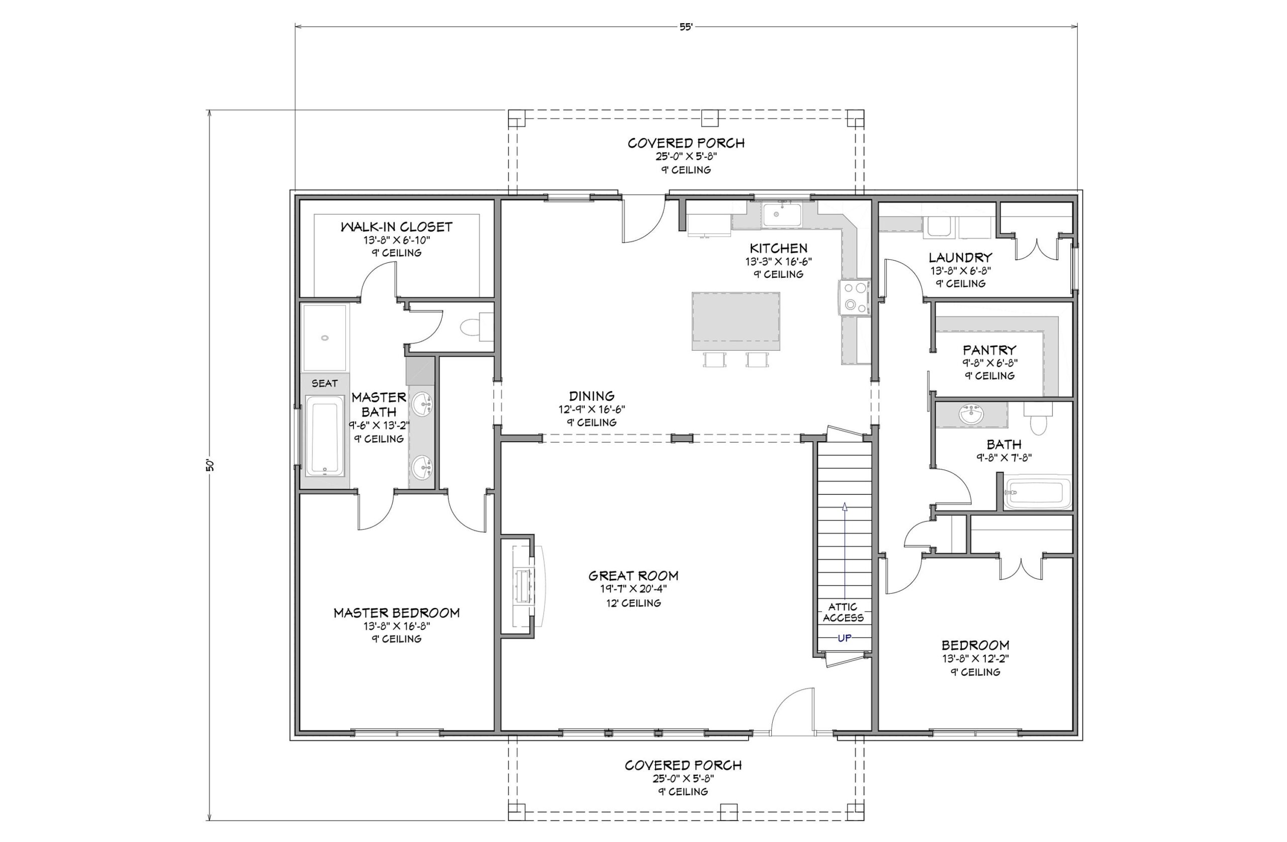
2 Bedroom Barndominium House Plans
2 Bedroom Barndominium House Plans
These plans typically feature an open floor layout, maximizing space and light. The design often includes a spacious living area that seamlessly connects to the kitchen, creating an inviting environment for gatherings.
Another advantage of 2 bedroom barndominium house plans is their energy efficiency. Many designs incorporate sustainable materials and modern insulation techniques, reducing utility costs while promoting eco-friendly living.
Customization is also a key benefit. Homeowners can choose finishes, layouts, and additional features to suit their personal style and needs. This flexibility makes barndominiums a popular choice among those seeking unique homes.
In conclusion, 2 bedroom barndominium house plans offer a perfect blend of style, efficiency, and customization. They cater to diverse lifestyles while providing a warm and inviting space for everyone to enjoy.
