Looking for the perfect 2 bedroom, 2 garage house plans? You’re in luck! These versatile layouts are ideal for small families, couples, or individuals looking for a cozy yet functional home.
With two bedrooms, you have the flexibility to use the extra space as a home office, guest room, or hobby area. And with two garages, you’ll have plenty of room for your vehicles, storage, or workspace.
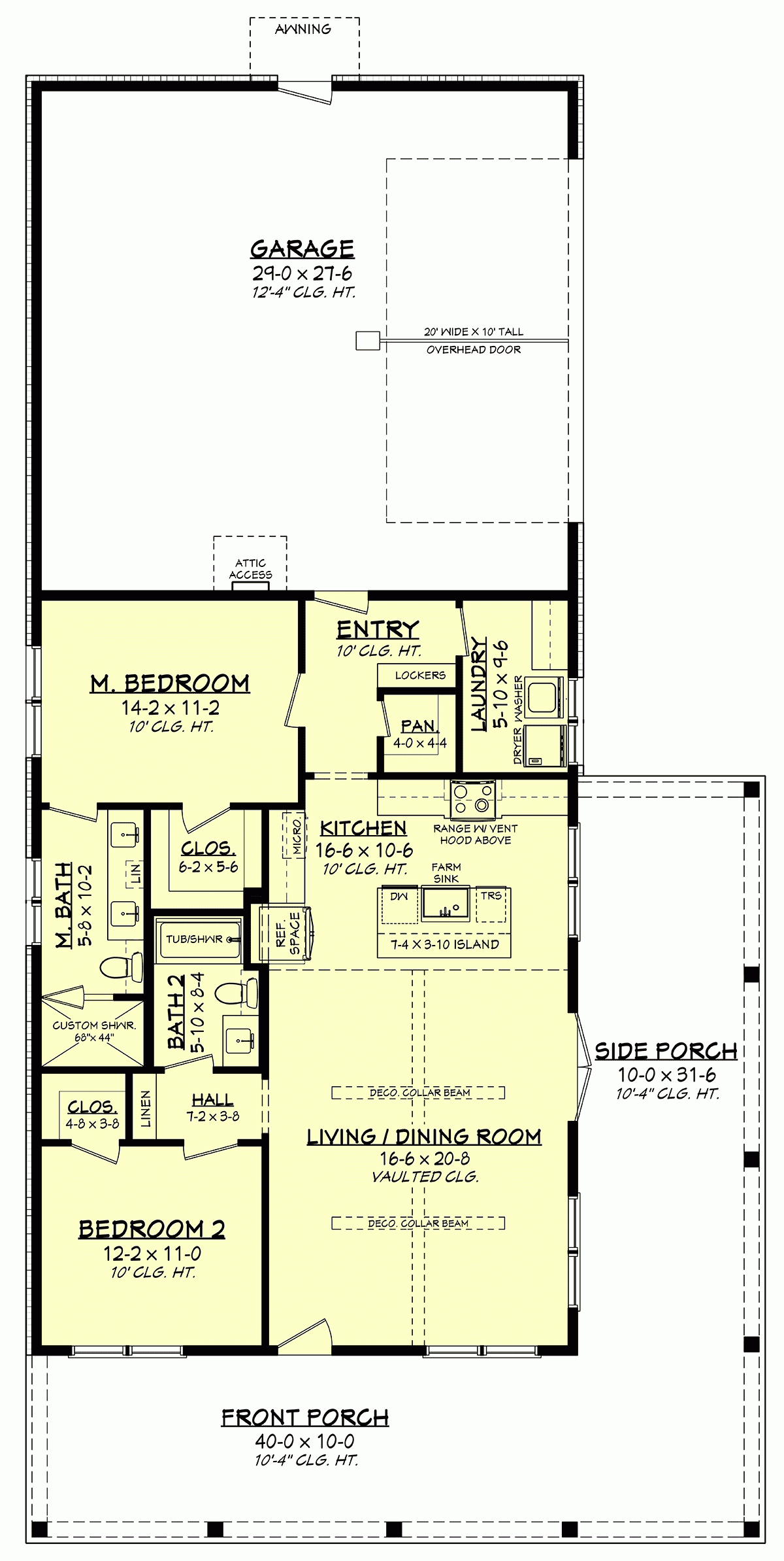
2 Bedroom 2 Garage House Plans
2 Bedroom 2 Garage House Plans
When choosing a 2 bedroom, 2 garage house plan, consider factors like square footage, layout, and design style. Look for plans that maximize space efficiency and offer plenty of natural light.
Popular features in these plans include open-concept living areas, en-suite bathrooms, walk-in closets, and covered outdoor spaces. You can also customize the plans to fit your specific needs and preferences.
Whether you’re building your first home, downsizing, or looking for a vacation retreat, 2 bedroom, 2 garage house plans offer the perfect balance of comfort and functionality. Start exploring your options today and turn your dream home into a reality!
With the right 2 bedroom, 2 garage house plan, you can create a space that suits your lifestyle and meets your needs. From cozy cottages to modern bungalows, there are plenty of options to choose from. So why wait? Start planning your future home today!
Large 3 Bedroom Home With Double Garage
2 Bedroom House Plan BLA 107S My Building Plans South Africa
House Plan 82920 Traditional Style With 1260 Sq Ft 2 Bed 2 Ba
Plan 76522 CRAFTSMAN STYLE 2 BEDROOM AFFORDABLE HOUSE PLAN WITH
2 Bedroom House 2B 1B 1G 85A Architect Plan





