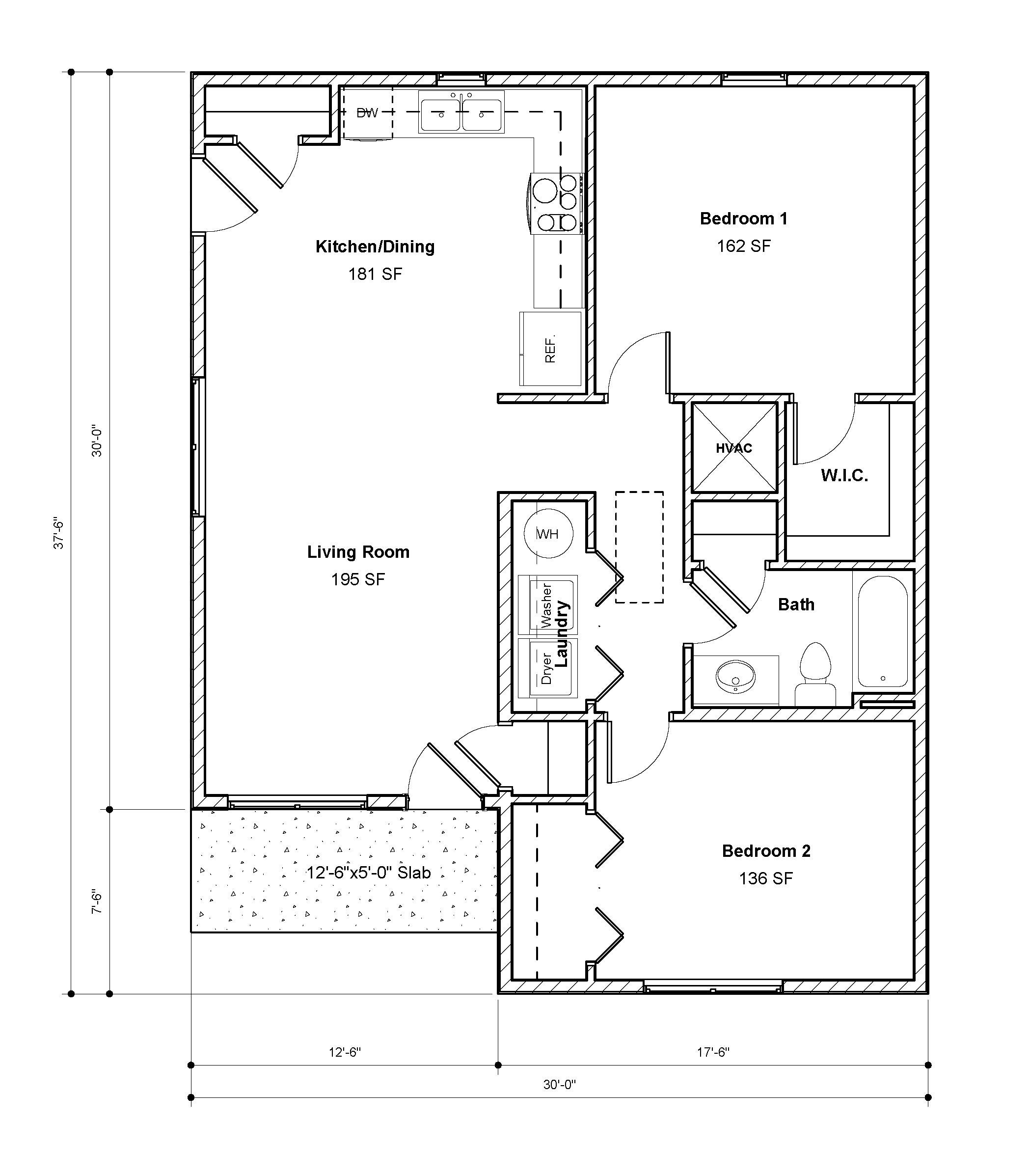
2 Bedroom 1 Bath House Plans