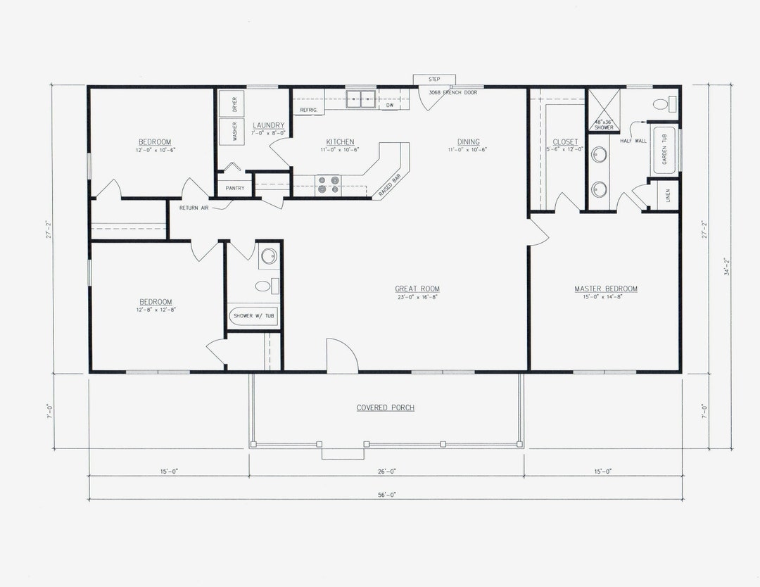
Looking for the perfect house plan for your family? Consider a 1500 Sqft 4 Bedroom House Plan. With just the right amount of space and bedrooms, this plan is ideal for families of all sizes.
Whether you’re a growing family or just want extra space for guests, a 1500 Sqft 4 Bedroom House Plan offers the perfect balance of comfort and functionality. You’ll have plenty of room to relax and entertain without feeling overwhelmed by too much space.
1500 Sqft 4 Bedroom House Plans
1500 Sqft 4 Bedroom House Plans: Perfect for Families
One of the main advantages of a 1500 Sqft 4 Bedroom House Plan is the flexibility it offers. With four bedrooms, you can use one as a home office, playroom, or guest room, giving you the freedom to adapt the space to your family’s needs.
In addition to the bedrooms, a 1500 Sqft house plan typically includes spacious living areas, a kitchen, and multiple bathrooms. This layout ensures that everyone in the family has their own space while still allowing for quality time together in shared areas.
Overall, a 1500 Sqft 4 Bedroom House Plan is a great option for families looking for a comfortable and practical living space. With just the right amount of room and bedrooms, this plan offers the perfect balance of functionality and style for everyday living.
Consider a 1500 Sqft 4 Bedroom House Plan for your next home and enjoy the flexibility and comfort it provides for your family’s needs. With the right layout and design, you can create a space that truly feels like home.
4 Bedroom 1500 Sq ft Modern Home Kerala Home Design And Floor Plans 10K Dream Houses
1600 Sq ft 4 Bedroom Modern Flat Roof House Kerala Home Design And Floor Plans 10K Dream Houses
3 Bedroom 2 Bath House Plan Floor Plan Great Layout 1500 Sq Ft The Houston House Large Master Bedroom And Bathroom Etsy
1500 Square Foot Four Bedroom Two Bathroom Floor Plan One Story Traditional Cottage House Plans For Narrow Lots Etsy Canada
House Plans PDFs For 1500 Sq Ft 4 Bedroom House





