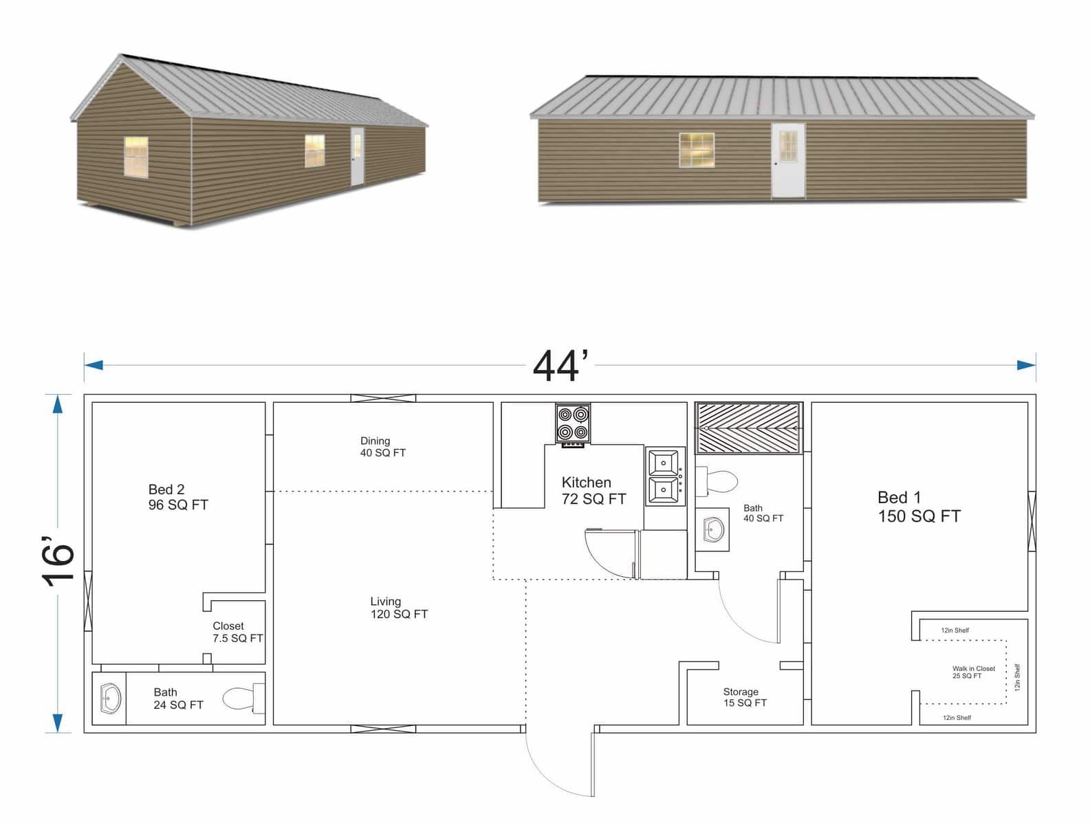
Are you looking for 14×40 shed house plans with 2 bedrooms? Look no further! These versatile plans offer the perfect combination of space and functionality for your needs. Whether you’re looking to build a cozy getaway or a full-time residence, these plans have got you covered.
With a 14×40 footprint, these shed house plans are ideal for small families, couples, or individuals looking for a comfortable living space. The 2 bedrooms provide ample room for sleeping quarters, while the open floor plan allows for easy flow between the living, dining, and kitchen areas.
14×40 Shed House Plans 2 Bedroom
Discover the Benefits of 14×40 Shed House Plans 2 Bedroom
One of the key advantages of these plans is their versatility. Whether you’re looking to build a vacation home, a rental property, or a year-round residence, these plans can be easily customized to suit your needs. With a variety of layout options available, you can create a space that works for you.
Additionally, the compact size of these shed house plans makes them a cost-effective option for those looking to downsize or build on a budget. With less square footage to heat, cool, and maintain, you can save money on utilities and upkeep while still enjoying a comfortable living space.
In conclusion, if you’re in the market for 14×40 shed house plans with 2 bedrooms, look no further! These plans offer a perfect combination of space, functionality, and affordability. With a variety of customization options available, you can create a space that meets your needs and fits your budget.
Tiny Home Floor Plan 14 X 40 Deluxe Lofted Barn 1bd 1bth
Tiny Home Floor Plan Gallery Robin Sheds
Tiny Home Floor Plan Gallery Robin Sheds
Tiny Home Floor Plan Gallery Robin Sheds
Shed To Tiny House Floor Plans 14×40





