Finding the perfect home design can be an exciting journey. One popular choice among families is the 1 story house plan, especially those featuring four bedrooms. These designs offer convenience and comfort for everyone.
With a single level, 1 story house plans 4 bedroom provide easy accessibility, making them ideal for families with young children or elderly members. This layout eliminates the need for stairs, promoting safety and ease of movement.
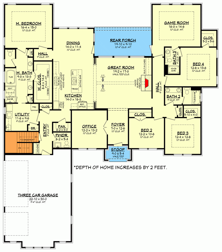
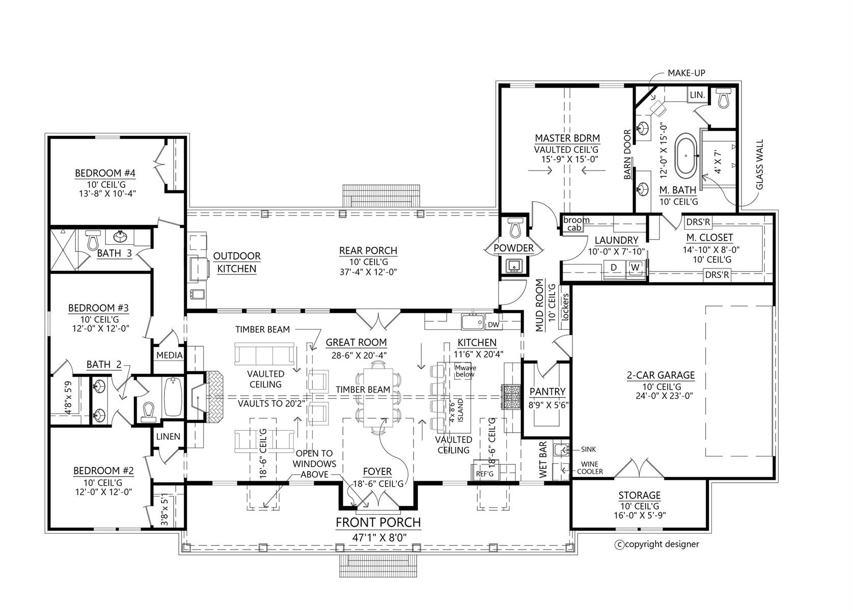
1 Story House Plans 4 Bedroom
1 Story House Plans 4 Bedroom
These house plans often include spacious living areas that encourage family interaction. Open floor concepts are common, allowing for seamless transitions between the kitchen, dining, and living spaces. This design fosters a warm and inviting atmosphere.
Another advantage of 1 story house plans is the potential for outdoor living spaces. Many designs incorporate patios or decks, perfect for entertaining guests or enjoying quiet evenings with family. This connection to nature enhances the overall living experience.
Energy efficiency is also a key benefit of single-story homes. With a smaller footprint, these houses often require less energy for heating and cooling. This can lead to lower utility bills and a more sustainable lifestyle.
Choosing a 1 story house plan with four bedrooms can cater to various needs, whether it’s accommodating a growing family or providing extra space for guests. These versatile designs truly offer something for everyone.
In conclusion, 1 story house plans with four bedrooms combine functionality and style. They create a comfortable living environment while ensuring accessibility and energy efficiency, making them an excellent choice for modern families.
