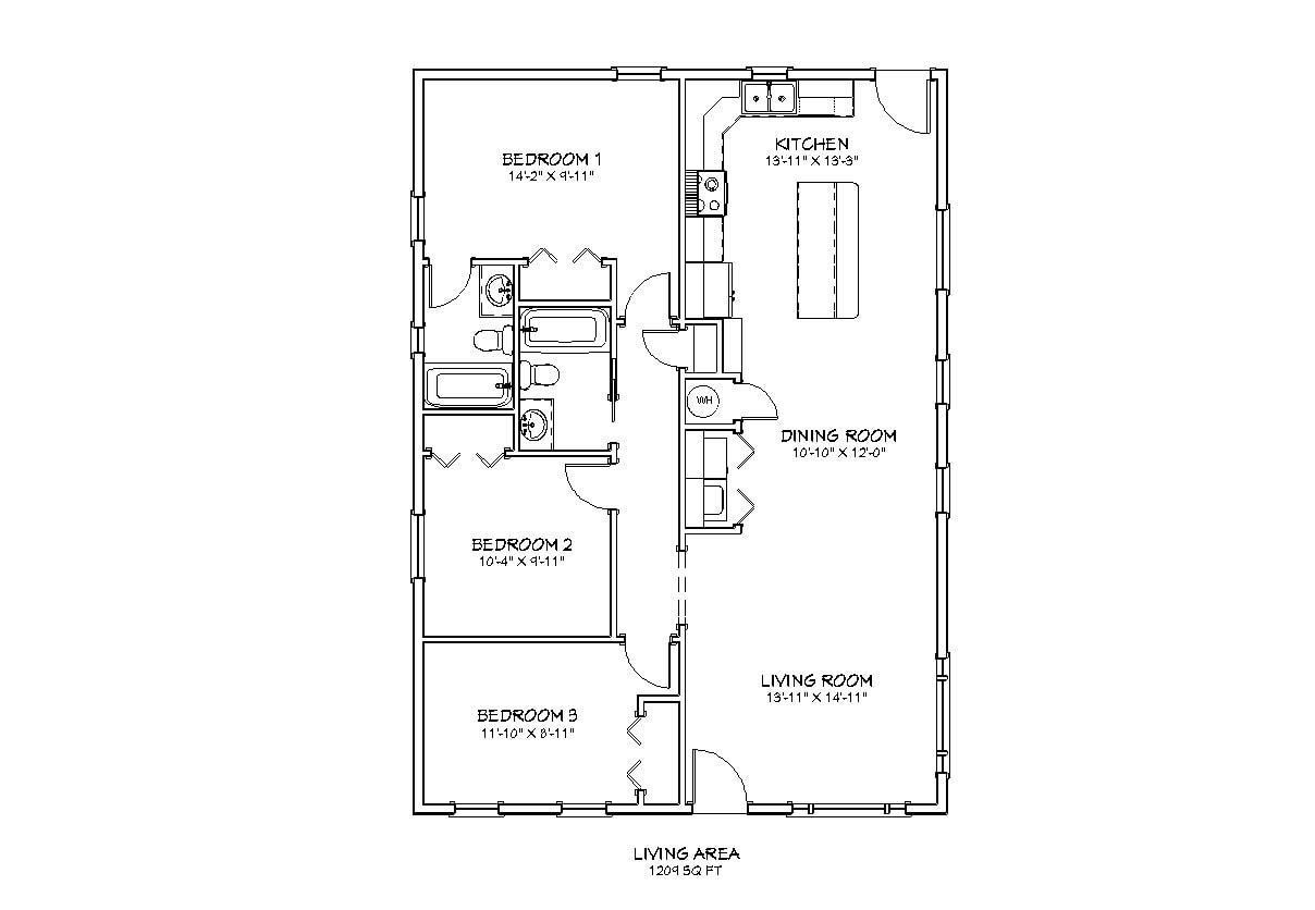
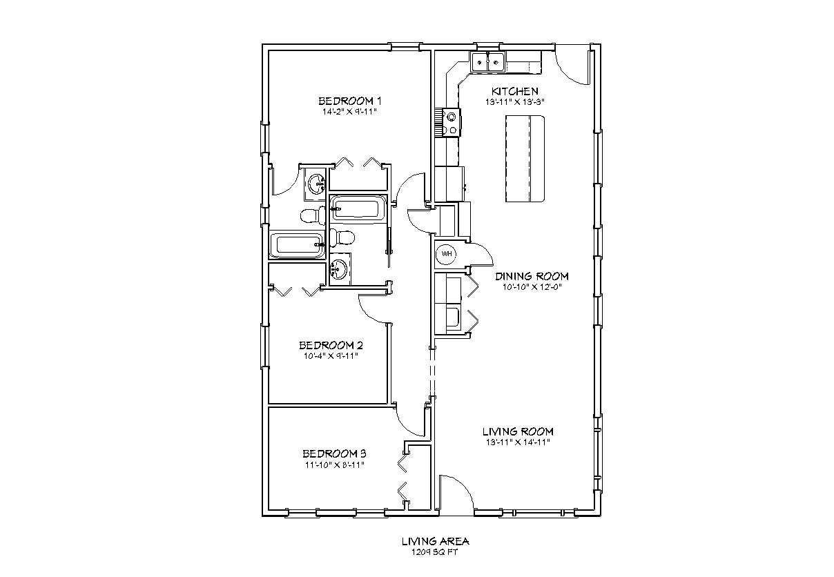
Finding the perfect home design can be an exciting journey. One popular choice among homebuyers is the 1 story 3 bedroom house plan, which offers both comfort and functionality. These designs cater to families and individuals alike.
With a single-story layout, accessibility is a key feature. This makes it easier for everyone, including children and seniors, to move around without the hassle of stairs. Plus, it creates a cozy atmosphere that feels inviting.
1 Story 3 Bedroom House Plans
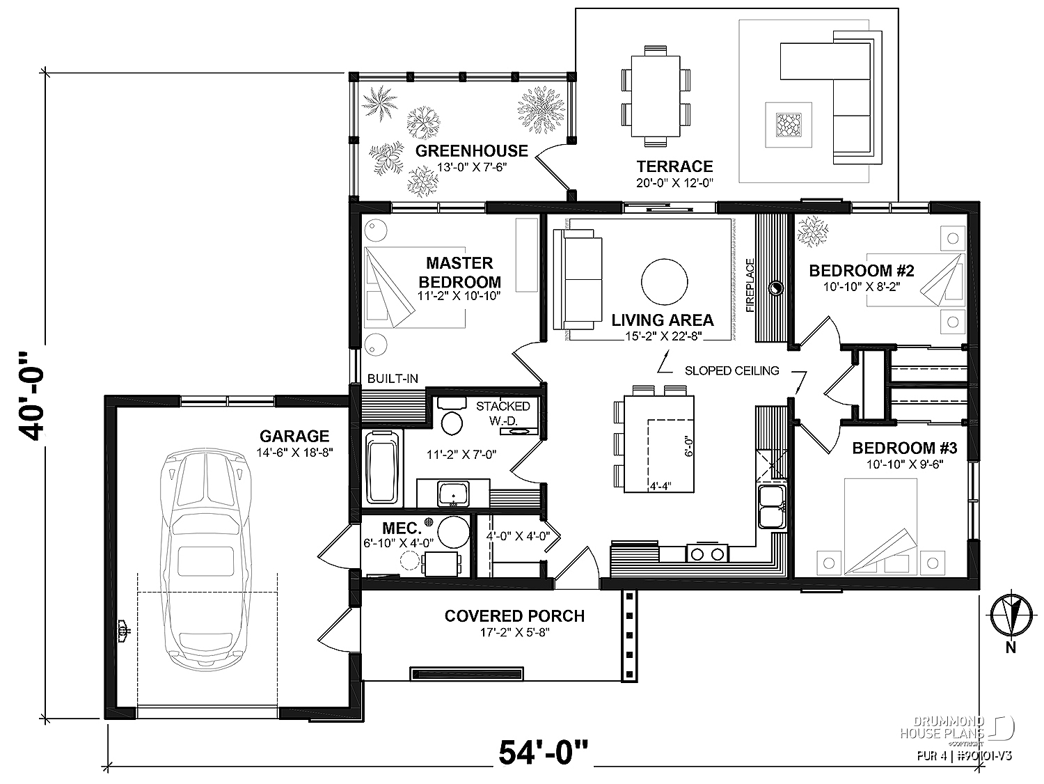
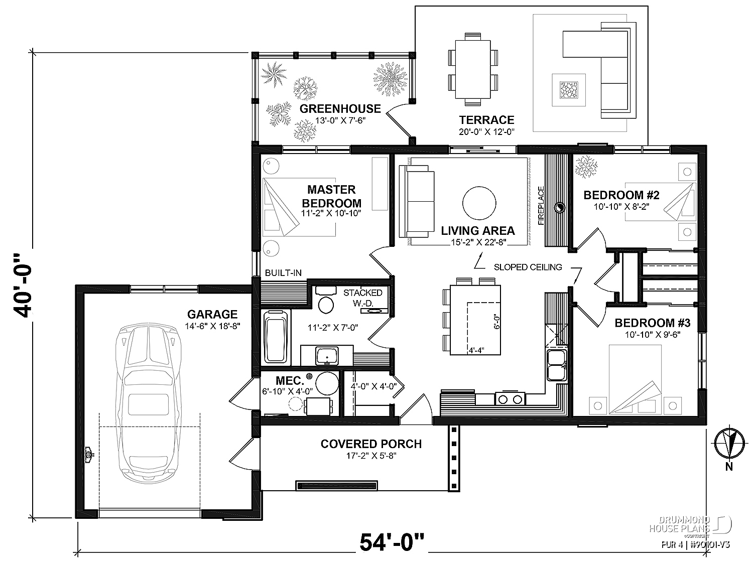
1 Story 3 Bedroom House Plans
1 story 3 bedroom house plans come in various styles, from modern to traditional. This variety allows homeowners to choose a design that reflects their personal taste while meeting their practical needs. Open floor plans are particularly popular for promoting family interaction.
Another advantage of these house plans is the efficient use of space. With three bedrooms, families can enjoy ample room for everyone without feeling cramped. This layout also provides flexibility for guests or a home office.
Outdoor living spaces are often incorporated into these designs, enhancing the overall experience. Patios or decks can serve as perfect spots for relaxation or entertaining friends and family during warm months.
Choosing a 1 story 3 bedroom house plan can lead to a fulfilling living experience. These homes blend convenience with style, making them an excellent choice for many families looking to settle down comfortably.
