Finding the perfect home can be a challenge, especially when considering space and functionality. One popular option is the 1 bedroom shop house, which combines living and working areas seamlessly. This design is ideal for those who want convenience and comfort.
These unique homes cater to various lifestyles, making them a great choice for entrepreneurs or remote workers. With a well-planned layout, you can enjoy both personal and professional spaces without sacrificing quality of life.
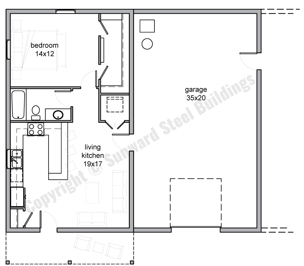
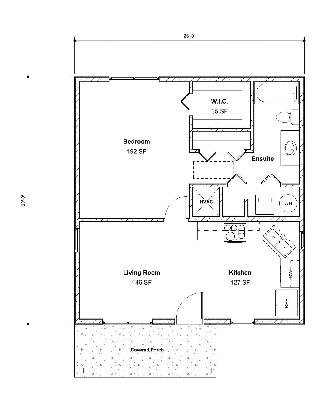
1 Bedroom Shop House Plans
1 Bedroom Shop House Plans
1 bedroom shop house plans offer flexibility in design. You can customize your space to fit your needs, whether you prefer an open concept or defined areas. This adaptability makes it easier to create a comfortable living environment.
Many designs include features like large windows for natural light and efficient storage solutions. These elements enhance both the aesthetic appeal and functionality of your home. A well-thought-out plan can maximize every square foot.
Additionally, incorporating eco-friendly materials can make your shop house more sustainable. This not only benefits the environment but also reduces long-term costs. Choosing energy-efficient appliances further enhances your home’s value.
Ultimately, 1 bedroom shop houses provide a unique blend of work and home life. With thoughtful planning, you can create a space that meets your needs while remaining stylish and functional. Embrace this innovative living solution today!
