If you’re looking for cozy and efficient living spaces, 1 bedroom shop house plans might be the perfect solution for you. These compact yet stylish designs are ideal for singles, couples, or small families looking for a minimalist lifestyle.
With a 1 bedroom shop house plan, you can enjoy the convenience of having your living space and workspace all in one place. These designs are perfect for those who work from home or run a small business and want to minimize their commute time.
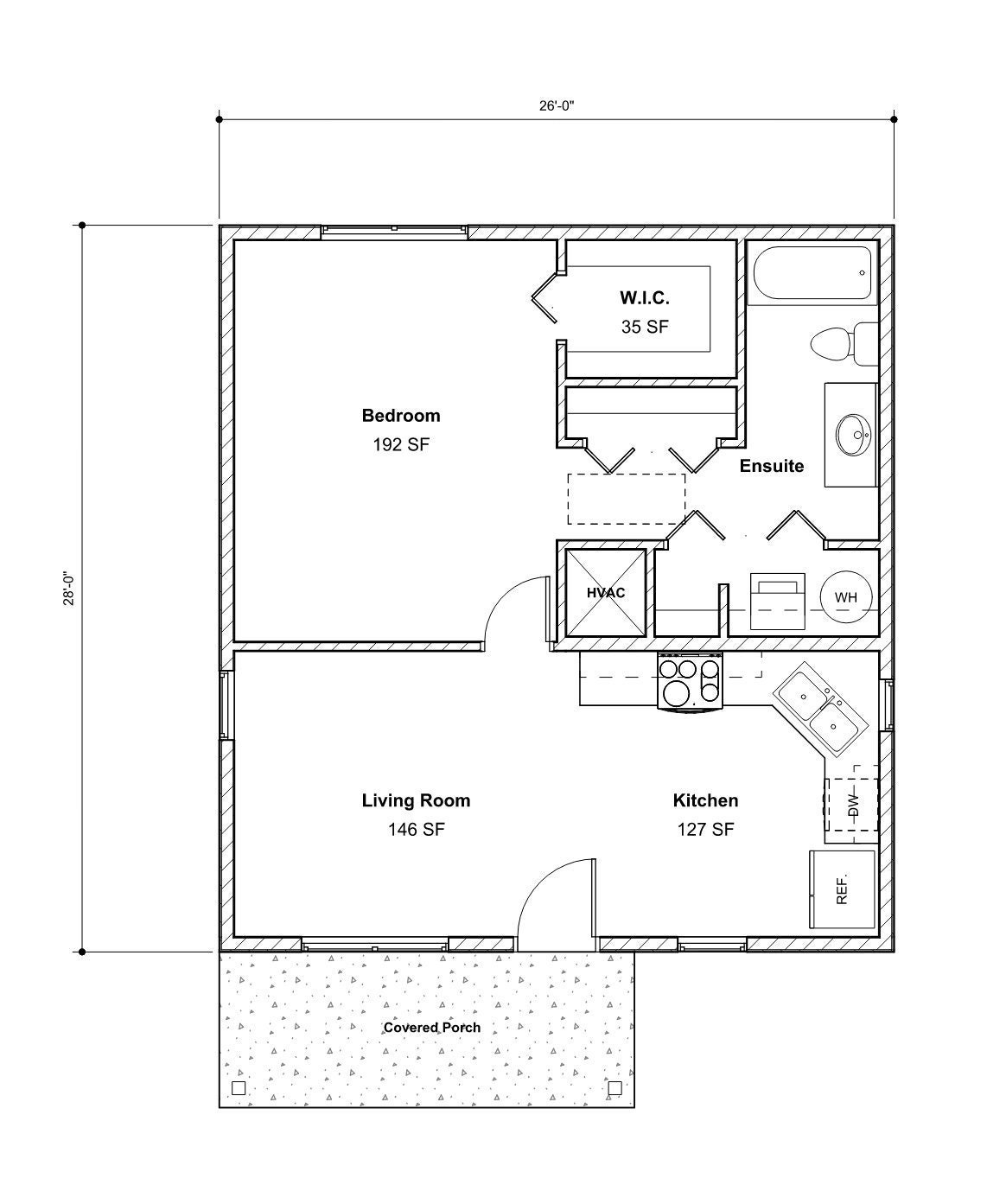
1 Bedroom Shop House Plans
1 Bedroom Shop House Plans: The Perfect Blend of Comfort and Functionality
These plans typically feature an open-concept layout with a combined living room, kitchen, and dining area, making the most of the available space. The bedroom is usually located on the second floor, providing a cozy retreat from the hustle and bustle of daily life.
1 bedroom shop house plans often include a small patio or balcony, allowing residents to enjoy some fresh air and outdoor space without having to leave their home. These designs are perfect for urban settings where space is limited, but a connection to nature is still desired.
Whether you’re a young professional looking to start your homeownership journey or a downsizing empty nester seeking a simpler lifestyle, 1 bedroom shop house plans offer a practical and stylish solution. Embrace the trend of compact living without sacrificing comfort or functionality.
Experience the charm of living in a thoughtfully designed space that meets all your needs while showcasing your unique style and personality. Explore the possibilities of 1 bedroom shop house plans and discover a new way of living that is both efficient and delightful.
BM2610 Shophouse
Plan 100801 Craftsman Style With 1 Bed 1 Bath 6 Car Garage
Cozy 1 Bedroom 1 Bath Floor Plan House Plan 750 Sq Ft The Woodland Cottage Model 00005 Etsy
8 Best Barndominium Shop Plans With Living Quarters
Barndominium Floor Plans 1 2 Or 3 Bedroom Barn Home Plans





