Looking for a 1 bedroom house plan for free? You’ve come to the right place! Whether you’re a first-time homeowner or looking to downsize, a 1 bedroom house plan can offer cozy living with less maintenance. Let’s explore some key features of a 1 bedroom house plan.
One of the advantages of a 1 bedroom house plan is its affordability. With fewer rooms to build and maintain, you can save on construction costs and ongoing expenses. Additionally, a smaller footprint means less space to clean and furnish, making it ideal for those who prefer a simpler lifestyle.
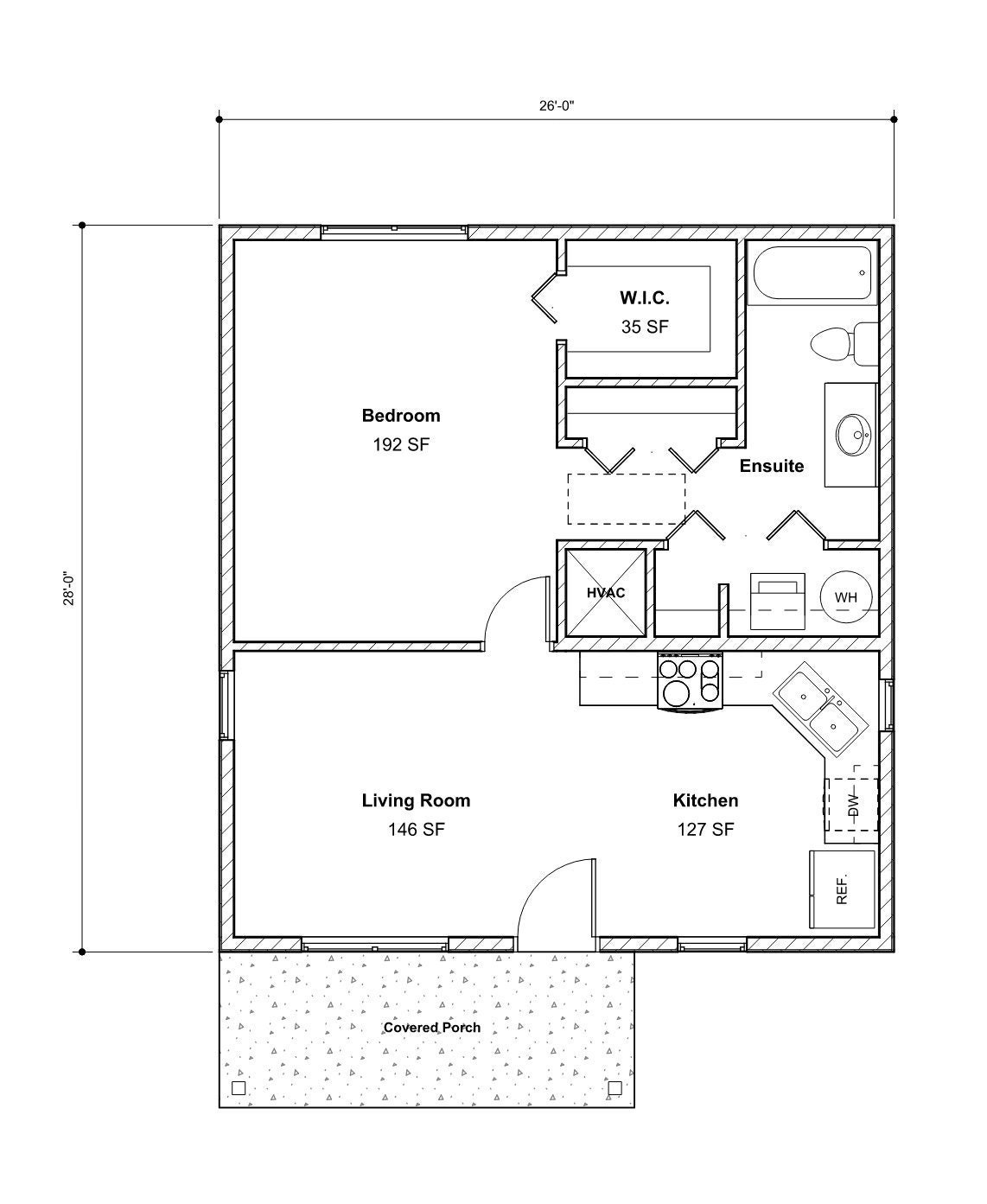
1 Bedroom House Plan Free
1 Bedroom House Plan Free: Features
Despite its compact size, a well-designed 1 bedroom house plan can offer all the essential features you need for comfortable living. From a spacious bedroom to a functional kitchen and living area, a 1 bedroom house plan can be customized to suit your lifestyle and preferences.
Furthermore, a 1 bedroom house plan can be easily adapted to your specific needs. Whether you work from home and need a dedicated office space or enjoy entertaining guests and require a larger living area, a 1 bedroom house plan can be modified to accommodate your unique requirements.
In conclusion, a 1 bedroom house plan offers a practical and cost-effective housing solution for individuals and couples looking to simplify their lives. With the right design and customization, a 1 bedroom house plan can provide all the comforts of home in a compact and efficient layout. So, why wait? Start exploring 1 bedroom house plans for free today!
Cozy 1 Bedroom 1 Bath Floor Plan House Plan 750 Sq Ft The Woodland Cottage Model 00005 Etsy
House Plans 6×6 With One Bedrooms Hip Roof House Plans 3D
1 Bedroom House Plan Examples
Small House Plan 4 5×9 Meter One Bedroom PDF Plan
Simple One Bedroom House Plans Eliana





