Looking to build your dream home? Consider starting with 1 bedroom house plans. These compact and cozy layouts are perfect for singles, couples, or even as a vacation retreat.
With a 1 bedroom house plan, you can customize the space to fit your needs and lifestyle. Whether you prefer an open-concept design or a more traditional layout, the possibilities are endless.
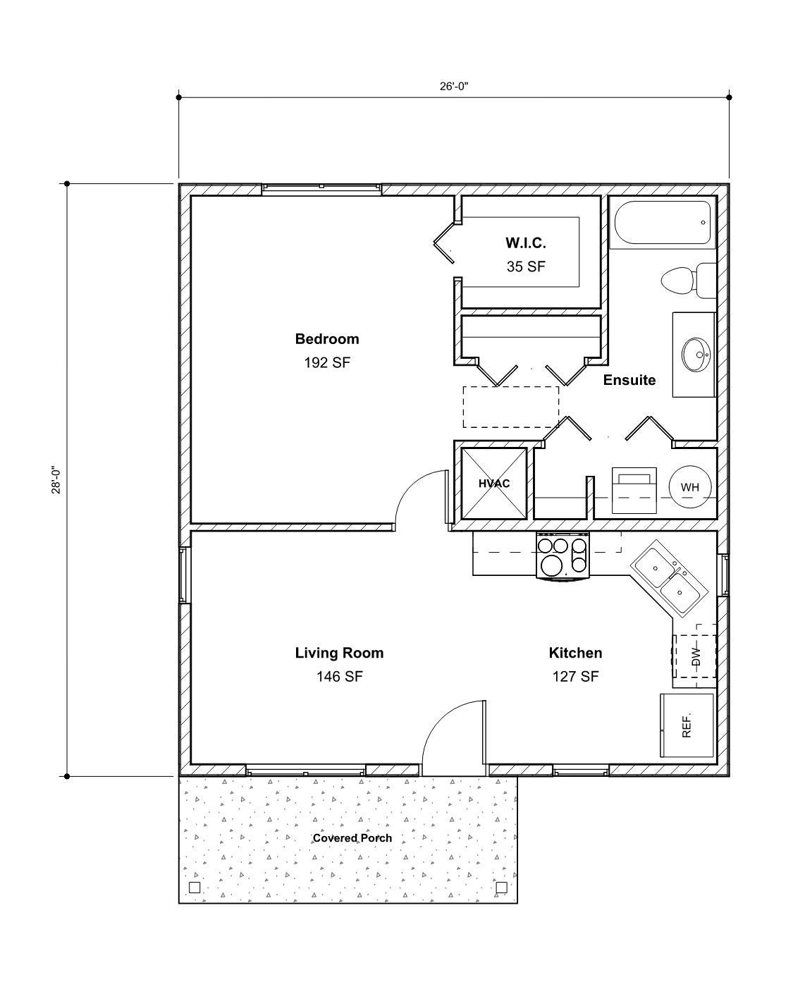
1 Bedroom Hous Plans
1 Bedroom House Plans: What to Consider
When choosing a 1 bedroom house plan, think about how you will use the space. Do you need a home office, guest room, or outdoor living area? Consider these factors when selecting a floor plan.
Opt for a design that maximizes natural light and airflow to create a bright and airy atmosphere. Adding large windows, skylights, or a patio can help bring the outdoors in and make your home feel more spacious.
Don’t forget about storage! Look for built-in closets, cabinets, and multi-functional furniture to make the most of your space. Consider incorporating clever storage solutions like under-bed drawers or wall-mounted shelves.
Ready to start building your dream home with a 1 bedroom house plan? Whether you’re downsizing, starting fresh, or looking for a weekend getaway, these layouts offer comfort, functionality, and style in a small package.
House Plan 80829 Traditional Style With 732 Sq Ft 1 Bed 1 Bat
Plan 68572 Traditional Style With 1 Bed 1 Bath
1 Bedroom House Plan Examples
Cozy 1 Bedroom 1 Bath Floor Plan House Plan 750 Sq Ft The
Simple One Bedroom House Plans Eliana





